Te huur: Appartement Graadt van Roggenstraat in Nijmegen
Bekijk kaart- 74 m²
- 2 kamers
Exclusief voor jou
Deze woning is voor jou beschikbaar via je persoonlijke notificatie en verschijnt niet in de zoekresultaten.
Beschrijving
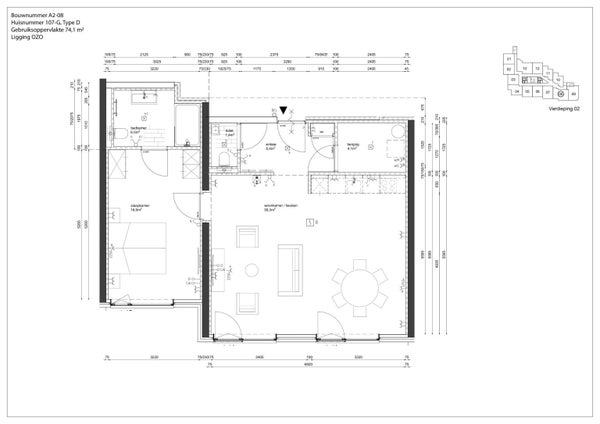
In Residence Belvoir, waar modern wonen en klassiek decor samenkomen, zijn diverse woningen ontstaan in het voormalige hotel. Dit appartement van type D biedt een comfortabele leefruimte met luxe afwerking. U vindt er een aparte slaapkamer en een ruime woonkamer met een open keuken, compleet met inbouwapparatuur. De badkamer is voorzien van een ruime douche, wastafel en toilet, terwijl een separaat toilet en een interne berging voor de wasmachine en droger bijdragen aan uw comfort. U heeft bovendien een parkeerplaats in de parkeerkelder. De huurprijs bedraagt € 1424,- per maand, met servicekosten van € 90,- en een waarborgsom van maximaal twee maanden huur. Beschikbaar per 1 februari 2026, met een minimum huurperiode van 12 maanden.
Overdracht
- Huurprijs
-
€ 1.424 per maand
- Aangeboden sinds
- 13-01-2026
- Status
- Te huur
- Beschikbaar
- Per direct
Oppervlakte en inhoud
- Woonoppervlakte
- 74 m²
Bouw
- Type woning
- Appartement
- Soort woning
- Galerijflat
- Soort bouw
- Bestaande bouw
Indeling
- Aantal kamers
- 2
- Aantal slaapkamers
- 1
- Aantal badkamers
- 1
Buitenruimte
- Dakterras
- Niet aanwezig