Woning verhuren

Contact met de makelaar

Deze woning is gevonden buiten ons eigen netwerk. Met de knop hieronder kom je direct bij de aanbieder terecht.

Nieuw

Te huur: Appartement Brabantstraat in Oss

Bekijk kaart
5346 PB (Hertogenbuurt)
€ 1.135 per maand
  • 86 m²
  • 2 kamers
  • 1996

Exclusief voor jou

Deze woning is voor jou beschikbaar via je persoonlijke notificatie en verschijnt niet in de zoekresultaten.

Beschrijving

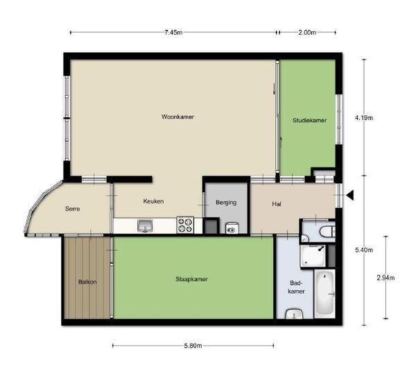
Dit 3-kamer appartement is per direct beschikbaar. U betreedt de woning via de hal, die toegang biedt tot de woonkamer en de keuken. In de woonkamer valt uw oog op de grote raampartij met mooi uitzicht. De hoekkeuken is gescheiden van de woonkamer. Het appartement heeft een slaapkamer en een compleet uitgeruste badkamer met zowel een ligbad als douche. Het toilet is afzonderlijk gelegen. De huurprijs bedraagt € 1135,- per maand, met servicekosten van € 45,00. U kunt zich inschrijven via de website van 'REBO Huurwoning'. Let op de inkomensvoorwaarden en dat volledige inschrijvingen meegenomen worden in de toewijzing. De huurovereenkomst is voor 12 maanden en wordt daarna stilzwijgend verlengd voor onbepaalde tijd.

Overdracht

Huurprijs
€ 1.135 per maand
Aangeboden sinds
04-12-2025
Status
Te huur
Beschikbaar
Per direct

Oppervlakte en inhoud

Woonoppervlakte
86 m²

Bouw

Type woning
Appartement
Soort woning
Galerijflat
Soort bouw
Bestaande bouw
Bouwjaar
1996

Indeling

Aantal kamers
2
Aantal slaapkamers
1
Aantal badkamers
1

Buitenruimte

Dakterras
Niet aanwezig

Energie

Energielabel
B

Huurvoorwaarden

Doelgroep
Werkende
Meld een probleem met deze woning