Woning verhuren

Contact met de makelaar

Deze woning is gevonden buiten ons eigen netwerk. Met de knop hieronder kom je direct bij de aanbieder terecht.

Nieuw

Te huur: Appartement Brabantstraat in Oss

Bekijk kaart
5346 PB (Hertogenbuurt)
€ 1.135 per maand
  • 87 m²
  • 2 kamers
  • 1996

Exclusief voor jou

Deze woning is voor jou beschikbaar via je persoonlijke notificatie en verschijnt niet in de zoekresultaten.

Beschrijving

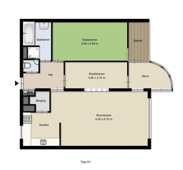
Dit 2-kamer appartement is per direct beschikbaar. U betreedt de woning via de hal, die toegang biedt tot alle vertrekken. De ruime woonkamer heeft een groot raam met uitzicht, waardoor veel licht binnenkomt. Aangrenzend aan de woonkamer vindt u de keuken in hoekopstelling. Het appartement beschikt over één slaapkamer en een compleet uitgevoerde badkamer met zowel een ligbad als een douche. Het toilet is apart gelegen. De huurprijs bedraagt € 1135 per maand, met servicekosten van € 45. Er zijn inkomenseisen; het bruto maandinkomen moet minimaal viermaal de huurprijs zijn. De huurovereenkomst is voor 12 maanden en gaat daarna over in een onbepaalde tijd. Interesse in een bezichtiging? Meld u aan als woningzoekende.

Overdracht

Huurprijs
€ 1.135 per maand
Aangeboden sinds
04-12-2025
Status
Te huur
Beschikbaar
Per direct

Oppervlakte en inhoud

Woonoppervlakte
87 m²

Bouw

Type woning
Appartement
Soort woning
Galerijflat
Soort bouw
Bestaande bouw
Bouwjaar
1996

Indeling

Aantal kamers
2
Aantal slaapkamers
1
Aantal badkamers
1

Buitenruimte

Dakterras
Niet aanwezig

Energie

Energielabel
A

Huurvoorwaarden

Doelgroep
Werkende
Meld een probleem met deze woning