Te huur: Appartement Populierenlaan in Rosmalen
Bekijk kaart- 184 m²
- 7 kamers
- 1968
Exclusief voor jou
Deze woning is voor jou beschikbaar via je persoonlijke notificatie en verschijnt niet in de zoekresultaten.
Beschrijving
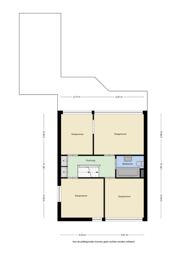
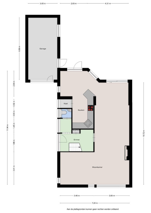
Te huur in Maliskamp: een royale, goed onderhouden tweekapper met 6 slaapkamers en 2 badkamers, perfect voor gezinnen. De woning beschikt over een ruime woonkamer met een houtkachel en een half open leefkeuken. In de groene achtertuin zijn terrassen te vinden, ideaal voor buitenactiviteiten. Met een energielabel A, garage en voldoende parkeergelegenheid is deze woning zeer aantrekkelijk. Het ligt in een rustige wijk dichtbij sportfaciliteiten, een supermarkt, een basisschool en het centrum van Rosmalen. De huurprijs bedraagt € 2250,- per maand, exclusief gas/water/elektra. De verhuur is tijdelijk en de woning is per direct beschikbaar.
Overdracht
- Huurprijs
-
€ 2.250 per maand
- Aangeboden sinds
- 04-12-2025
- Status
- Te huur
- Beschikbaar
- In overleg
Oppervlakte en inhoud
- Woonoppervlakte
- 184 m²
Bouw
- Type woning
- Appartement
- Soort woning
- Galerijflat
- Soort bouw
- Bestaande bouw
- Bouwjaar
- 1968
Indeling
- Aantal kamers
- 7
- Aantal slaapkamers
- 6
- Aantal badkamers
- 2
Buitenruimte
- Dakterras
- Niet aanwezig
Energie
- Energielabel
- A
Huurvoorwaarden
- Doelgroep
- Werkende