Woning verhuren

Contact met de makelaar

Deze woning is gevonden buiten ons eigen netwerk. Met de knop hieronder kom je direct bij de aanbieder terecht.

Te huur: Appartement 1e Middellandstraat in Rotterdam

Bekijk kaart
3021 BE (Middelland)
€ 1.790 per maand
  • 43 m²
  • 3 kamers
  • Gestoffeerd

Beschrijving

DE KOOLMEES - ROTTERDAM MIDDELLAND: Strakke en duurzame 3-kamerwoning op een super centrale locatie! De woning is beschikbaar per 01-01-2026 en wordt gestoffeerd verhuurd!

LET OP: De woning is ENKEL beschikbaar voor 2 STUDENTEN die niet uit gemeente Rotterdam komt en waarvan de duur van zijn/ haar studie tot maximaal 31-08-2026 duurt!

Interesse? Reageer via de contactknoppen naast de beschrijving

BELANGRIJKSTE KENMERKEN:
• Energielabel A+++
• Beschikbaar tot 31-08-2026
• Woonoppervlakte van ca. 60m2
• De woningen heeft een strak design, perfect afgestemd op de behoeften van de stedelijke bewoner;
• Dichtbij een schat aan voorzieningen en vervoersverbindingen.
• Foto's zijn van een vergelijkbaar object

OMGEVING:
Wonen aan de 's-Gravendijkwal betekent wonen in het hart van Rotterdam West, een dynamische buurt vol karakter, historie én vernieuwing. De straat zelf bruist van de energie, met talloze speciaalzaken, koffietentjes en eethuisjes op loopafstand – van wereldse keukens tot lokale favorieten. De levendige sfeer wordt perfect aangevuld door het groene Heemraadspark op een steenworp afstand: dé plek voor een wandeling, picknick of zomerse workout.
Dankzij de centrale ligging ben je met de fiets of tram in enkele minuten in het centrum of op Rotterdam Centraal. Of je nu houdt van cultuur, horeca, winkelen of rust: hier heb je het allemaal binnen handbereik. De 1e Middellandstraat combineert het beste van de stad met een buurtgevoel waar diversiteit, creativiteit en verbondenheid samenkomen.

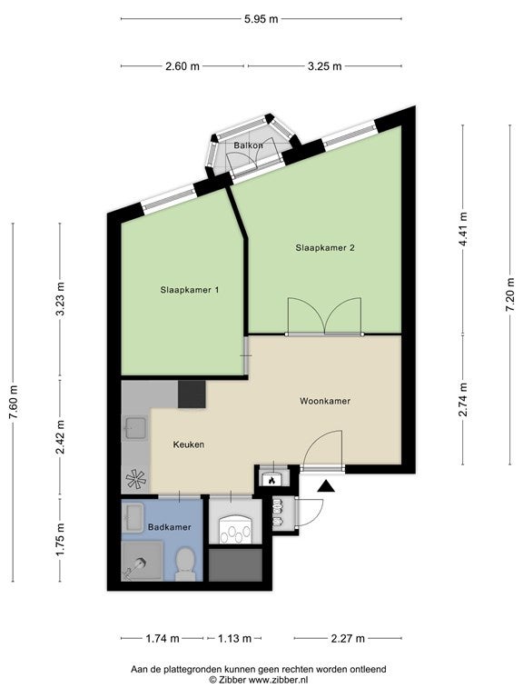
BEGANE GROND:
Gedeelde entree en trapopgang.

TWEEDE VERDIEPING:
Eigen entree in de woonruimte met open keuken.
De keuken is uitgerust met onder andere een koelkast, vriezer, combi-oven, inductie kookplaat en een vaatwasser.
Twee slaapkamers waarvan 1 slaapkamer toegang biedt tot het balkon.
De badkamer is voorzien van een douche, een wastafelmeubel met spiegel en een toilet.
Aparte ruimte met wasmachine-aansluiting

• Beschikbaar per 01-01-2026
• Foto's zijn van een vergelijkbaar object
• De woning is enkel beschikbaar voor 2 STUDENTEN die niet uit gemeente Rotterdam komen en waarvan de duur van hun studie tot 31-08-2026 duurt!
• Beschikbaar tot 31-08-2026
• De genoemde prijs is inclusief servicekosten en voorschot verwarmingskosten
• De huurprijs is exclusief water, elektra, tv/internet en gemeentelijke lasten
• De woning wordt gestoffeerd verhuurd
• Waarborgsom gelijk aan twee maanden huur
• Er zal een tijdelijke huurovereenkomst worden gebruikt (art. 7:271 BW, maximaal 8 maanden)
• Huren met garantsteller is mogelijk in overleg (inkomenseis tenminste 4 keer de huur)
• Huisdieren en roken niet toegestaan (blindengeleidehonden en andere assistentiehonden wel zijn toegestaan. Vermeld dit wel svp uitdrukkelijk bij interesse)
• Jaarlijkse huurprijsverhoging conform CPI
• De woning heeft energielabel A+++
• De meest recente WOZ waarde van de woning bedraagt € 136.000,00

Er kunnen geen rechten worden ontleend aan de gegevens, tekst en foto's van dit object.

REAGEREN:
• Het Rental Rotterdam Team helpt je graag bij het vinden van je nieuwe thuis.
• Ben je geïnteresseerd en wil je een bezichtiging aanvragen? Reageer dan via de contactknoppen naast de beschrijving van deze woning.
• Wij plannen bezichtigingen in via een geautomatiseerd systeem. Hierom kan je dus alleen via de contactknoppen op de website reageren. Zo kunnen wij je beter en sneller helpen.
• Een verhuurmakelaar neemt dan zo spoedig mogelijk contact met je op.
• Bij voorbaat dank voor je begrip en medewerking.

Overdracht

Huurprijs
€ 1.790 per maand
  • Inclusief: Servicekosten
Aangeboden sinds
25-11-2025
Status
Te huur
Beschikbaar
In overleg
Huurovereenkomst
Tijdelijke verhuur
Looptijd
Maximaal 8 maanden
Borg
€ 3.400
Interieur
Gestoffeerd
Onderhoudsstaat
Zeer goed

Oppervlakte en inhoud

Woonoppervlakte
43 m²
Inhoud
107 m³

Bouw

Type woning
Appartement
Soort woning
Portiekflat, Appartement
Soort bouw
Bestaande bouw
Bouwjaar
1903
Ligging
  • In het centrum
  • Nabij het openbaar vervoer
  • Nabij een school

Indeling

Aantal kamers
3
Aantal slaapkamers
2
Aantal badkamers
1
Aantal woonlagen
1

Buitenruimte

Balkon
Aanwezig
Dakterras
Niet aanwezig

Energie

Isolatie
Dubbele beglazing, Volledig geïsoleerd
Energielabel
A+++

Parkeergelegenheid

Aanwezig
Ja
Soort parkeergelegenheid
Openbaar
Meld een probleem met deze woning