Woning verhuren

Contact met de makelaar

Deze woning is gevonden buiten ons eigen netwerk. Met de knop hieronder kom je direct bij de aanbieder terecht.

Nieuw

Te huur: Appartement Louis Regoutstraat in Tilburg

Bekijk kaart
5042 RE (Station Universiteit)
€ 716 per maand
  • 29 m²
  • 2 kamers
  • 1961

Beschrijving

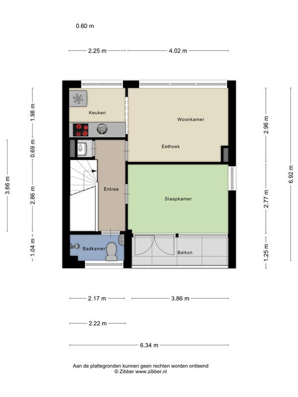
Dit appartement op de tweede verdieping biedt een praktische indeling met een aparte woon-/eetkamer en keuken. De slaapkamer aan de voorzijde heeft toegang tot een balkon met uitzicht op het kanaal. De compacte badkamer is functioneel ingericht. Het appartement is beschikbaar per 1 maart 2026 voor € 716,80 per maand, met een voorschot van € 150,- voor gas/water/licht en een waarborgsom van € 1.433,60. Gelegen in Tilburg West, dichtbij Station Tilburg West, de Tilburg University, en winkelcentrum Westermarkt. Ideaal voor een centraal leven, met het centrum van Tilburg snel bereikbaar. Huurvoorwaarden omvatten een inkomenseis van 3 keer de huur voor maximaal twee personen, en huisdieren zijn niet toegestaan. 29 m² woonruimte met 2 kamers en een energielabel D. Geen tuin, maar wel een ingebouwde berging en openbaar parkeren is beschikbaar.

Overdracht

Huurprijs
€ 716 per maand
Aangeboden sinds
28-01-2026
Status
Te huur
Beschikbaar
Per 01-03-2026

Oppervlakte en inhoud

Woonoppervlakte
29 m²

Bouw

Type woning
Appartement
Soort woning
Galerijflat
Soort bouw
Bestaande bouw
Bouwjaar
1961

Indeling

Aantal kamers
2
Aantal slaapkamers
1
Aantal badkamers
1

Buitenruimte

Dakterras
Niet aanwezig

Huurvoorwaarden

Doelgroep
Werkende
Meld een probleem met deze woning