Woning verhuren

Contact met de makelaar

Deze woning is gevonden buiten ons eigen netwerk. Met de knop hieronder kom je direct bij de aanbieder terecht.

Nieuw

Te huur: Appartement Willem Frederik Hermansstraat in Utrecht

Bekijk kaart
3544 KP (Het Zand-Oost)
€ 1.301 per maand
  • 81 m²
  • 3 kamers

Exclusief voor jou

Deze woning is voor jou beschikbaar via je persoonlijke notificatie en verschijnt niet in de zoekresultaten.

Beschrijving

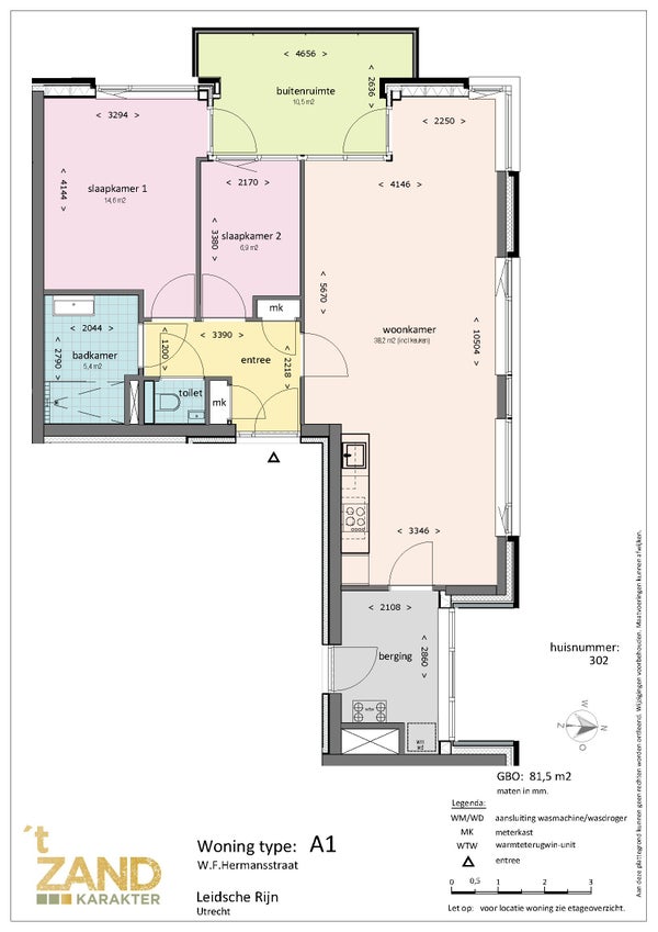
Binnenkort beschikbaar is dit ruime 3-kamer appartement in 't Zand, Leidsche Rijn, met een balkon op het westen. Het appartement, gelegen op de eerste verdieping, heeft een oppervlakte van 81,5 m² en beschikt over een ruime woonkamer met open keuken, uitgerust met moderne apparatuur zoals een vaatwasser en inductiekookplaat. Er zijn twee slaapkamers, een verzorgde badkamer met inloopdouche en een separaat toilet. Voorzieningen in de buurt zijn winkels, scholen en openbaar vervoer, met station Terwijde op slechts 10 minuten lopen. Beschikbaar per 1 januari 2026 voor € 1.301,00 per maand, plus € 55,00 servicekosten. De huur wordt aangegaan voor 12 maanden met een standaard waarborgsom van twee maanden. Het appartement is gebouwd in 2022.

Overdracht

Huurprijs
€ 1.301 per maand
Aangeboden sinds
04-12-2025
Status
Te huur
Beschikbaar
Per direct

Oppervlakte en inhoud

Woonoppervlakte
81 m²

Bouw

Type woning
Appartement
Soort woning
Galerijflat
Soort bouw
Bestaande bouw

Indeling

Aantal kamers
3
Aantal slaapkamers
2
Aantal badkamers
1

Buitenruimte

Dakterras
Niet aanwezig

Huurvoorwaarden

Doelgroep
Werkende
Meld een probleem met deze woning