Contact met de makelaar

Deze woning is gevonden buiten ons eigen netwerk. Met de knop hieronder kom je direct bij de aanbieder terecht.

Nieuw

Stadionplein 81

Bekijk kaart
1076 CK Amsterdam (Stadionbuurt)
€ 895.000 k.k.
  • 134 m²
  • 5 kamers
  • 1931

Samenvatting

  • Deze woning wordt sinds 11 oktober 2025 aangeboden door Yourhome Makelaars;
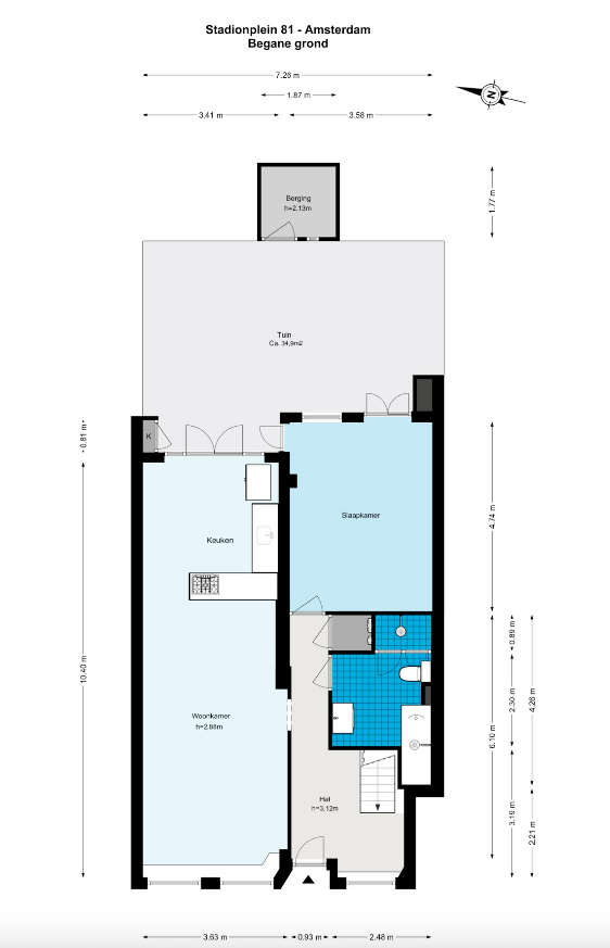
  • De benedenwoning heeft een woonoppervlakte van 134 m² en beschikt over 5 kamers, waarvan 4 slaapkamers;
  • De woning is gebouwd In 1931 en ligt in de buurt Stadionbuurt in Amsterdam;
  • De woning beschikt onder andere over de volgende voorzieningen: Airconditioning, Bad, Kabel TV, Douche, Bergruimte, Toilet.

Beschrijving

Overdracht

Vraagprijs
€ 895.000 k.k.
Aangeboden sinds
11-10-2025
Status
Beschikbaar
Beschikbaar
In overleg
Onderhoudsstaat
Goed

Oppervlakte en inhoud

Woonoppervlakte
134 m²
Inhoud
473 m³

VvE informatie

Inschrijving KvK
Ja
Jaarlijkse vergadering
Ja
Periodieke bijdrage
Ja (€ 299 per maand)
Reservefonds aanwezig
Ja
Onderhoudsplan
Ja
Opstalverzekering
Ja

Bouw

Type woning
Appartement
Soort woning
Benedenwoning, Appartement
Soort bouw
Bestaande bouw
Bouwjaar
1931
Ligging
  • In een woonwijk
  • Beschut gelegen

Indeling

Aantal kamers
5
Aantal slaapkamers
4
Aantal badkamers
2
Aantal woonlagen
2
Voorzieningen
  • Airconditioning
  • Bad
  • Kabel TV
  • Douche
  • Bergruimte
  • Toilet

Buitenruimte

Balkon
Niet aanwezig
Tuin
Aanwezig (34 m², gelegen op het oosten)
Tuinbeschrijving
achtertuin
Dakterras
Niet aanwezig

Energie

Isolatie
Dubbele beglazing
Verwarming
CV-ketel
Warm water
CV-ketel
Energielabel
D

Bergruimte

Schuur/Berging
Aanwezig
Omschrijving
Vrijstaand hout

Parkeergelegenheid

Aanwezig
Ja
Soort parkeergelegenheid
Betaald

Garage

Aanwezig
Nee
Meld een probleem met deze woning
Contact met de makelaar Bel