Nieuw
Frederik Hendrikstraat 123 1
Bekijk kaart1052 HP Amsterdam (Frederik Hendrikbuurt)
€ 400.000
k.k.
- 45 m²
- 2 kamers
- 1895
Samenvatting
- Deze woning wordt sinds 30 oktober 2025 aangeboden door PB Makelaars o.z.;
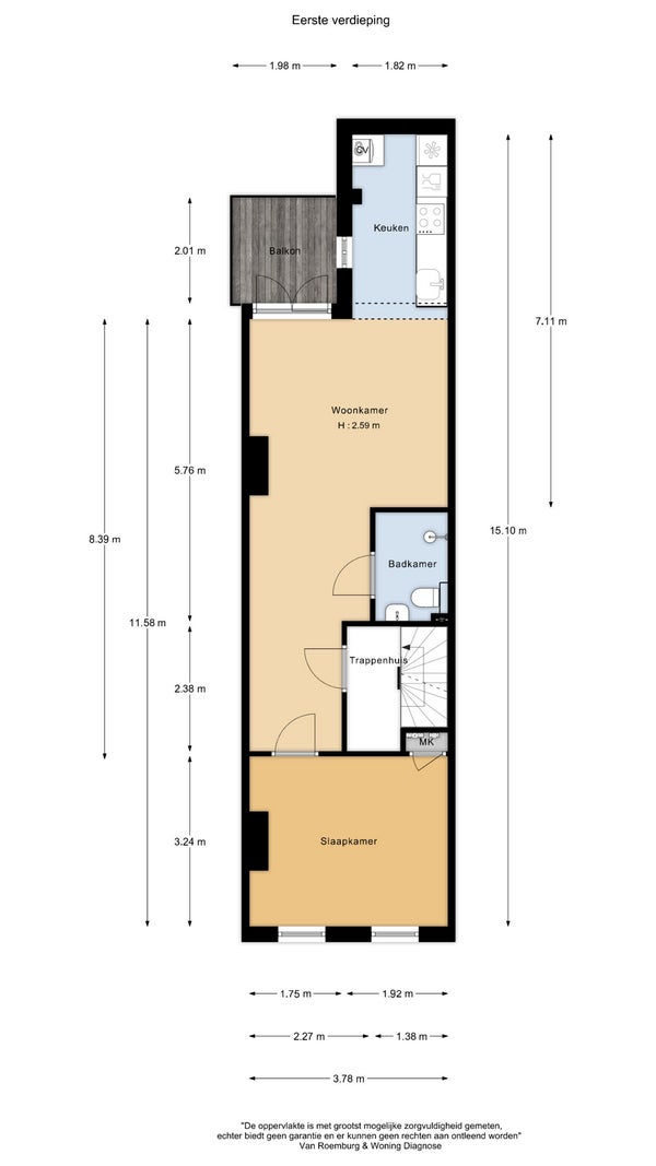
- De tussenverdieping heeft een woonoppervlakte van 45 m² en beschikt over 2 kamers, waarvan 1 slaapkamer;
- De woning is gebouwd In 1895 en ligt in de buurt Frederik Hendrikbuurt in Amsterdam.
Beschrijving
Overdracht
- Vraagprijs
- € 400.000 k.k.
- Aangeboden sinds
- 30-10-2025
- Status
- Beschikbaar
- Beschikbaar
- In overleg
- Onderhoudsstaat
- Goed
Oppervlakte en inhoud
- Woonoppervlakte
- 45 m²
- Inhoud
- 117 m³
VvE informatie
- Inschrijving KvK
- Ja
- Jaarlijkse vergadering
- Nee
- Periodieke bijdrage
- Ja (€ 40 per maand)
- Reservefonds aanwezig
- Ja
- Onderhoudsplan
- Ja
- Opstalverzekering
- Ja
Bouw
- Type woning
- Appartement
- Soort woning
- Tussenverdieping
- Soort bouw
- Bestaande bouw
- Bouwjaar
- 1895
Indeling
- Aantal kamers
- 2
- Aantal slaapkamers
- 1
- Aantal badkamers
- 1
- Aantal woonlagen
- 1
- Voorzieningen
-
- Douche
- Toilet
Buitenruimte
- Balkon
- Aanwezig
- Tuin
- Niet aanwezig
- Dakterras
- Niet aanwezig
Energie
- Isolatie
- Dubbele beglazing
- Verwarming
- CV-ketel
- Warm water
- CV-ketel
- Energielabel
- C
Parkeergelegenheid
- Aanwezig
- Ja
- Soort parkeergelegenheid
- Betaald
Garage
- Aanwezig
- Nee