- 98 m²
- 5 kamers
- 1873
Samenvatting
- Deze woning wordt sinds 2 maanden aangeboden door Booij Makelaardij o.z.;
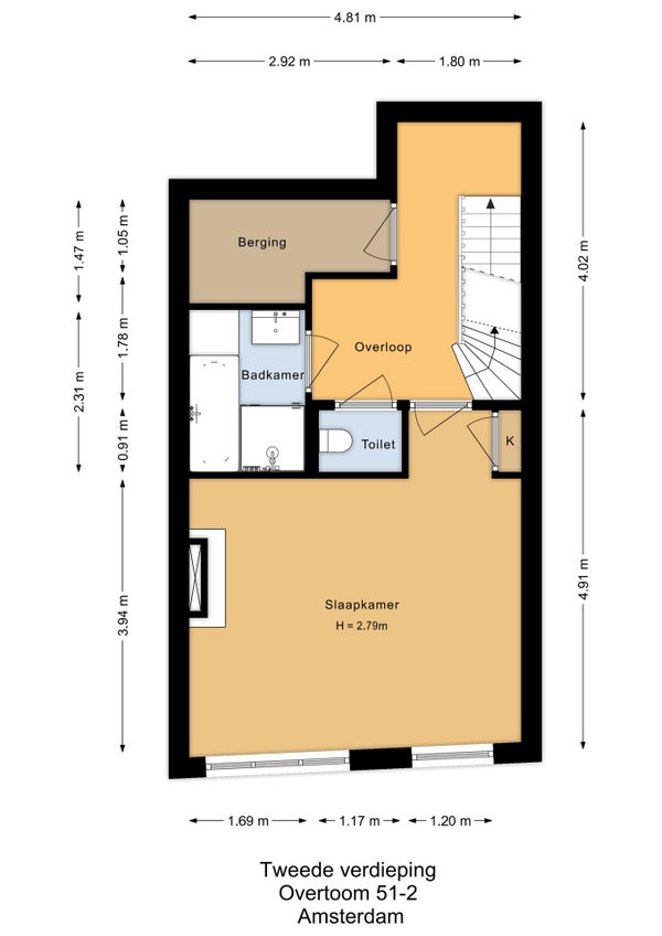
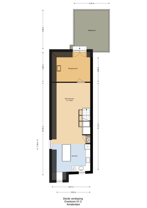
- De bovenwoning heeft een woonoppervlakte van 98 m² en beschikt over 5 kamers, waarvan 2 slaapkamers;
- De woning is gebouwd In 1873 en ligt in de buurt Vondelparkbuurt in Amsterdam;
- De woning beschikt onder andere over de volgende voorzieningen: Airconditioning, Bad, Mechanische ventilatie, Rolluiken, Dakterras, Douche, Dakraam, Bergruimte, Toilet, Wasruimte.
Beschrijving
Meer woninginformatie bekijken?
Log in of registreer gratis.
Overdracht
- Vraagprijs
- € 820.000 k.k.
- Aangeboden sinds
- 26-08-2025
- Status
- Beschikbaar
- Beschikbaar
- In overleg
- Bijzonderheden
- Beschermd stads- of dorpsgezicht
- Onderhoudsstaat
- Zeer goed
Oppervlakte en inhoud
- Woonoppervlakte
- 98 m²
- Perceeloppervlakte
- 98 m²
- Inhoud
- 351 m³
VvE informatie
- Inschrijving KvK
- Ja
- Jaarlijkse vergadering
- Ja
- Periodieke bijdrage
- Ja (€ 295 per maand)
- Reservefonds aanwezig
- Ja
- Onderhoudsplan
- Ja
- Opstalverzekering
- Ja
Bouw
- Type woning
- Appartement
- Soort woning
- Bovenwoning, Dubbel bovenhuis
- Soort bouw
- Bestaande bouw
- Bouwjaar
- 1873
- Ligging
- 
                                        
                                                                    
                        - In het centrum
- In een woonwijk
 
Indeling
- Aantal kamers
- 5
- Aantal slaapkamers
- 2
- Aantal badkamers
- 1
- Aantal woonlagen
- 2
- Voorzieningen
- 
                                        
                                                                                                                        
                        - Airconditioning
- Bad
- Mechanische ventilatie
- Rolluiken
- Dakterras
- Douche
- Dakraam
- Bergruimte
- Toilet
- Wasruimte
 
Buitenruimte
- Balkon
- Niet aanwezig
- Tuin
- Niet aanwezig
- Dakterras
- Aanwezig
Energie
- Isolatie
- HR glas, Dakisolatie, Driedubbele beglazing
- Verwarming
- CV-ketel
- Warm water
- CV-ketel
- Cv-ketel
- HR-107 (Gas, Eigendom)
- Energielabel
- C
Parkeergelegenheid
- Aanwezig
- Ja
- Soort parkeergelegenheid
- Betaald
Garage
- Aanwezig
- Nee
 
                 
                 
                 
                 
                 
                 
                 
                 
                 
                 
                 
                 
                 
                 
                 
                