Contact met de makelaar

Deze woning is gevonden buiten ons eigen netwerk. Met de knop hieronder kom je direct bij de aanbieder terecht.

Nieuw

Mercatorstraat 59 2

Bekijk kaart
1056 PZ Amsterdam (Van Galenbuurt)
€ 425.000 k.k.
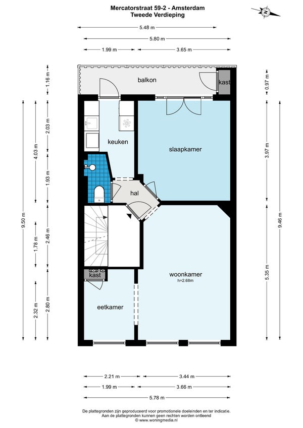
  • 50 m²
  • 2 kamers
  • 1927

Samenvatting

  • Deze woning wordt sinds 21 oktober 2025 aangeboden door PB Makelaars o.z.;
  • De bovenwoning heeft een woonoppervlakte van 50 m² en beschikt over 2 kamers, waarvan 1 slaapkamer;
  • De woning is gebouwd In 1927 en ligt in de buurt Van Galenbuurt in Amsterdam;
  • De woning beschikt onder andere over de volgende voorzieningen: Kabel TV, Mechanische ventilatie, Douche, Toilet.

Beschrijving

Meer woninginformatie bekijken?

Log in of registreer gratis.

Overdracht

Vraagprijs
€ 425.000 k.k.
Aangeboden sinds
21-10-2025
Status
Beschikbaar
Beschikbaar
In overleg
Bijzonderheden
Beschermd stads- of dorpsgezicht
Onderhoudsstaat
Goed

Oppervlakte en inhoud

Woonoppervlakte
50 m²
Inhoud
165 m³

Bouw

Type woning
Appartement
Soort woning
Bovenwoning, Appartement
Soort bouw
Bestaande bouw
Bouwjaar
1927
Ligging
  • Aan een rustige weg
  • In een woonwijk

Indeling

Aantal kamers
2
Aantal slaapkamers
1
Aantal badkamers
1
Aantal woonlagen
1
Voorzieningen
  • Kabel TV
  • Mechanische ventilatie
  • Douche
  • Toilet

Buitenruimte

Balkon
Aanwezig
Tuin
Niet aanwezig
Dakterras
Niet aanwezig

Energie

Isolatie
Dubbele beglazing, Vloerisolatie, Muurisolatie
Verwarming
CV-ketel
Warm water
CV-ketel

Parkeergelegenheid

Aanwezig
Ja
Soort parkeergelegenheid
Openbaar

Garage

Aanwezig
Nee
Meld een probleem met deze woning
Contact met de makelaar Bel