- 50 m²
- 3 kamers
- 1935
Samenvatting
- Deze woning wordt sinds 2 oktober 2025 aangeboden door Thoma Post Makelaars;
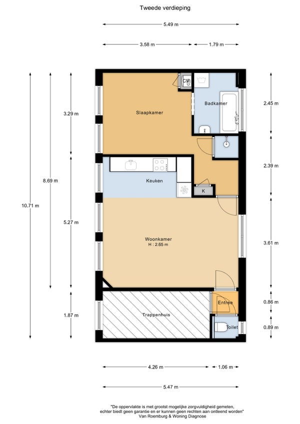
- De bovenwoning heeft een woonoppervlakte van 50 m² en beschikt over 3 kamers, waarvan 1 slaapkamer;
- De woning is gebouwd In 1935 en ligt in de buurt Haarlemmerbuurt in Amsterdam;
- De woning beschikt onder andere over de volgende voorzieningen: Bad, Mechanische ventilatie, Douche, Toilet.
Beschrijving
Overdracht
- Vraagprijs
- € 425.000 k.k.
- Aangeboden sinds
- 02-10-2025
- Status
- Beschikbaar
- Beschikbaar
- In overleg
- Onderhoudsstaat
- Goed
Oppervlakte en inhoud
- Woonoppervlakte
- 50 m²
- Inhoud
- 162 m³
Bouw
- Type woning
- Appartement
- Soort woning
- Bovenwoning, Appartement
- Soort bouw
- Bestaande bouw
- Bouwjaar
- 1935
- Ligging
-
- Aan een rustige weg
- In het centrum
- In een woonwijk
Indeling
- Aantal kamers
- 3
- Aantal slaapkamers
- 1
- Aantal badkamers
- 1
- Aantal woonlagen
- 2
- Voorzieningen
-
- Bad
- Mechanische ventilatie
- Douche
- Toilet
Buitenruimte
- Balkon
- Niet aanwezig
- Tuin
- Niet aanwezig
- Dakterras
- Niet aanwezig
Energie
- Isolatie
- Dubbele beglazing
- Verwarming
- CV-ketel
- Warm water
- CV-ketel
- Energielabel
- F
Parkeergelegenheid
- Aanwezig
- Ja
- Soort parkeergelegenheid
- Openbaar
Garage
- Aanwezig
- Nee