Nieuw
Burgemeester Hogguerstraat 1223
Bekijk kaart1064 EK Amsterdam (Slotermeer-Zuidoost)
€ 349.500
k.k.
- 47 m²
- 2 kamers
- 1965
Samenvatting
- Deze woning wordt sinds 24 oktober 2025 aangeboden door Keij & Stefels Makelaars en Taxateurs;
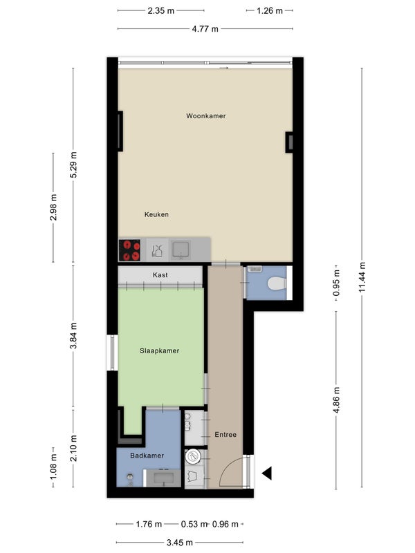
- De tussenverdieping heeft een woonoppervlakte van 47 m² en beschikt over 2 kamers, waarvan 1 slaapkamer;
- De woning is gebouwd In 1965 en ligt in de buurt Slotermeer-Zuidoost in Amsterdam.
Beschrijving
Overdracht
- Vraagprijs
- € 349.500 k.k.
- Aangeboden sinds
- 24-10-2025
- Status
- Beschikbaar
- Beschikbaar
- In overleg
- Onderhoudsstaat
- Goed
Oppervlakte en inhoud
- Woonoppervlakte
- 47 m²
- Inhoud
- 158 m³
VvE informatie
- Inschrijving KvK
- Ja
- Jaarlijkse vergadering
- Ja
- Periodieke bijdrage
- Ja (€ 176 per maand)
- Reservefonds aanwezig
- Ja
- Onderhoudsplan
- Ja
- Opstalverzekering
- Ja
Bouw
- Type woning
- Appartement
- Soort woning
- Tussenverdieping
- Soort bouw
- Bestaande bouw
- Bouwjaar
- 1965
Indeling
- Aantal kamers
- 2
- Aantal slaapkamers
- 1
- Aantal badkamers
- 1
- Aantal woonlagen
- 1
- Voorzieningen
-
- Douche
- Toilet
Buitenruimte
- Balkon
- Niet aanwezig
- Tuin
- Niet aanwezig
- Dakterras
- Niet aanwezig
Energie
- Energielabel
- A
Parkeergelegenheid
- Aanwezig
- Ja
- Soort parkeergelegenheid
- Openbaar
Garage
- Aanwezig
- Nee