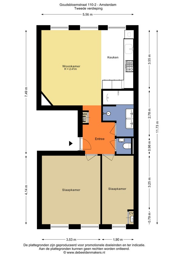
- 58 m²
- 3 kamers
- 1895
Samenvatting
- Deze woning wordt sinds 21 oktober 2025 aangeboden door VHM Makelaars Amsterdam;
- De bovenwoning heeft een woonoppervlakte van 58 m² en beschikt over 3 kamers, waarvan 2 slaapkamers;
- De woning is gebouwd In 1895 en ligt in de buurt Jordaan in Amsterdam;
- De woning beschikt onder andere over de volgende voorzieningen: Bad, Douche, Toilet.
Beschrijving
Meer woninginformatie bekijken?
Log in of registreer gratis.
Overdracht
- Vraagprijs
- € 525.000 k.k.
- Aangeboden sinds
- 21-10-2025
- Status
- Beschikbaar
- Beschikbaar
- In overleg
- Onderhoudsstaat
- Goed
Oppervlakte en inhoud
- Woonoppervlakte
- 58 m²
- Perceeloppervlakte
- 58 m²
- Inhoud
- 177 m³
VvE informatie
- Inschrijving KvK
- Ja
- Jaarlijkse vergadering
- Ja
- Periodieke bijdrage
- Ja (€ 150 per maand)
- Reservefonds aanwezig
- Ja
- Onderhoudsplan
- Ja
- Opstalverzekering
- Ja
Bouw
- Type woning
- Appartement
- Soort woning
- Bovenwoning, Appartement
- Soort bouw
- Bestaande bouw
- Bouwjaar
- 1895
- Ligging
- In een woonwijk
Indeling
- Aantal kamers
- 3
- Aantal slaapkamers
- 2
- Aantal badkamers
- 1
- Aantal woonlagen
- 1
- Voorzieningen
-
- Bad
- Douche
- Toilet
Buitenruimte
- Balkon
- Niet aanwezig
- Tuin
- Niet aanwezig
- Dakterras
- Niet aanwezig
Energie
- Isolatie
- Dubbele beglazing, Vloerisolatie, Dakisolatie
- Verwarming
- CV-ketel
- Warm water
- CV-ketel
- Cv-ketel
- Intergas (Gas, uit 2013, Eigendom)
- Energielabel
- C
Parkeergelegenheid
- Aanwezig
- Ja
- Soort parkeergelegenheid
- Betaald
Garage
- Aanwezig
- Nee