Contact met de makelaar

Deze woning is gevonden buiten ons eigen netwerk. Met de knop hieronder kom je direct bij de aanbieder terecht.

Nieuw

Kermispad 51

Bekijk kaart
1033 WZ Amsterdam (Oostzanerwerf)
€ 365.000 k.k.
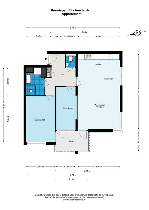
  • 62 m²
  • 3 kamers
  • 1989

Samenvatting

  • Deze woning wordt sinds 28 oktober 2025 aangeboden door PB Makelaars o.z.;
  • De bovenwoning heeft een woonoppervlakte van 62 m² en beschikt over 3 kamers, waarvan 2 slaapkamers;
  • De woning is gebouwd In 1989 en ligt in de buurt Oostzanerwerf in Amsterdam;
  • De woning beschikt onder andere over de volgende voorzieningen: Lift, Douche, Toilet.

Beschrijving

Meer woninginformatie bekijken?

Log in of registreer gratis.

Overdracht

Vraagprijs
€ 365.000 k.k.
Aangeboden sinds
28-10-2025
Status
Beschikbaar
Beschikbaar
In overleg
Onderhoudsstaat
Goed

Oppervlakte en inhoud

Woonoppervlakte
62 m²
Inhoud
192 m³

VvE informatie

Inschrijving KvK
Ja
Jaarlijkse vergadering
Ja
Periodieke bijdrage
Ja (€ 122 per maand)
Reservefonds aanwezig
Ja
Onderhoudsplan
Ja
Opstalverzekering
Ja

Bouw

Type woning
Appartement
Soort woning
Bovenwoning, Appartement
Soort bouw
Bestaande bouw
Bouwjaar
1989
Ligging
  • Aan een rustige weg
  • In een woonwijk

Indeling

Aantal kamers
3
Aantal slaapkamers
2
Aantal badkamers
1
Aantal woonlagen
1
Voorzieningen
  • Lift
  • Douche
  • Toilet

Buitenruimte

Balkon
Aanwezig
Tuin
Niet aanwezig
Dakterras
Niet aanwezig

Energie

Isolatie
Dubbele beglazing
Verwarming
CV-ketel
Warm water
CV-ketel
Cv-ketel
Intergas (Gas, Eigendom)
Energielabel
A

Bergruimte

Schuur/Berging
Aanwezig
Omschrijving
Inpandig

Parkeergelegenheid

Aanwezig
Ja
Soort parkeergelegenheid
Openbaar

Garage

Aanwezig
Nee
Meld een probleem met deze woning
Contact met de makelaar Bel