- 49 m²
- 2 kamers
- 1926
Samenvatting
- Deze woning wordt sinds 29 oktober 2025 aangeboden door Makelaardij & Co.;
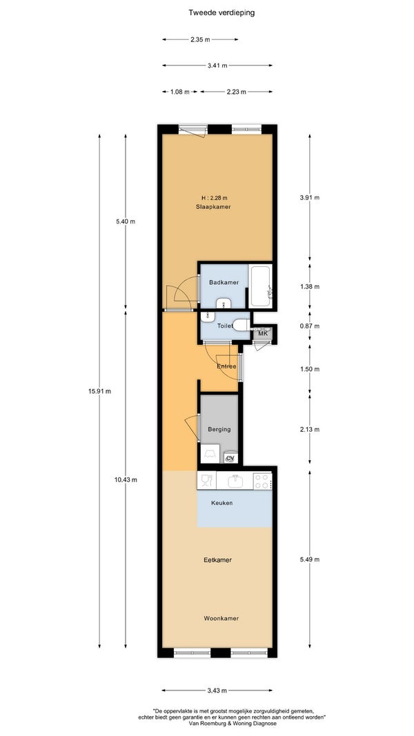
- De bovenwoning heeft een woonoppervlakte van 49 m² en beschikt over 2 kamers, waarvan 1 slaapkamer;
- De woning is gebouwd In 1926 en ligt in de buurt Jordaan in Amsterdam;
- De woning beschikt onder andere over de volgende voorzieningen: Bad, Douche, Toilet, Wasruimte.
Beschrijving
Meer woninginformatie bekijken?
Log in of registreer gratis.
Overdracht
- Vraagprijs
- € 485.000 k.k.
- Aangeboden sinds
- 29-10-2025
- Status
- Beschikbaar
- Beschikbaar
- In overleg
- Onderhoudsstaat
- Goed
Oppervlakte en inhoud
- Woonoppervlakte
- 49 m²
- Inhoud
- 112 m³
VvE informatie
- Inschrijving KvK
- Nee
- Jaarlijkse vergadering
- Ja
- Periodieke bijdrage
- Ja (€ 102 per maand)
- Reservefonds aanwezig
- Ja
- Onderhoudsplan
- Nee
- Opstalverzekering
- Ja
Bouw
- Type woning
- Appartement
- Soort woning
- Bovenwoning, Appartement
- Soort bouw
- Bestaande bouw
- Bouwjaar
- 1926
- Ligging
-
- Aan een rustige weg
- In het centrum
- In een woonwijk
Indeling
- Aantal kamers
- 2
- Aantal slaapkamers
- 1
- Aantal badkamers
- 1
- Aantal woonlagen
- 1
- Voorzieningen
-
- Bad
- Douche
- Toilet
- Wasruimte
Buitenruimte
- Balkon
- Niet aanwezig
- Tuin
- Niet aanwezig
- Dakterras
- Niet aanwezig
Energie
- Verwarming
- CV-ketel
- Warm water
- CV-ketel
- Cv-ketel
- Vaillant VCW 255/4 (uit 2012, Eigendom)
- Energielabel
- D
Parkeergelegenheid
- Aanwezig
- Ja
- Soort parkeergelegenheid
- Openbaar
Garage
- Aanwezig
- Nee