Contact met de makelaar

Deze woning is gevonden buiten ons eigen netwerk. Met de knop hieronder kom je direct bij de aanbieder terecht.

Van Speijkstraat

Bekijk kaart
1057 HB Amsterdam (Chassébuurt)
€ 935.000 k.k.
  • 106 m²
  • 4 kamers
  • 1923

Samenvatting

  • Deze woning wordt sinds 30 oktober 2025 aangeboden door PB Makelaars o.z.;
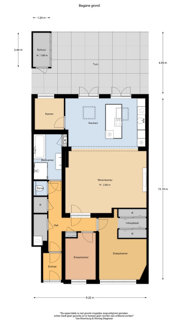
  • De galerijflat heeft een woonoppervlakte van 106 m² en beschikt over 4 kamers, waarvan 3 slaapkamers;
  • De woning is gebouwd In 1923 en ligt in de buurt Chassébuurt in Amsterdam.

Beschrijving

Meer woninginformatie bekijken?

Log in of registreer gratis.

Overdracht

Vraagprijs
€ 935.000 k.k.
Aangeboden sinds
30-10-2025
Status
Beschikbaar
Beschikbaar
In overleg

Oppervlakte en inhoud

Woonoppervlakte
106 m²

Bouw

Type woning
Appartement
Soort woning
Galerijflat
Soort bouw
Bestaande bouw
Bouwjaar
1923

Indeling

Aantal kamers
4
Aantal slaapkamers
3
Aantal badkamers
1

Buitenruimte

Dakterras
Niet aanwezig
Meld een probleem met deze woning