Contact met de makelaar

Deze woning is gevonden buiten ons eigen netwerk. Met de knop hieronder kom je direct bij de aanbieder terecht.

Onder bod

Johan Jongkindstraat 126

Bekijk kaart
1062 DJ Amsterdam (Overtoomse Veld)
€ 495.000 k.k.
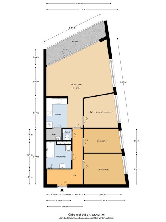
  • 94 m²
  • 4 kamers
  • 1998

Samenvatting

  • Deze woning wordt sinds 7 weken aangeboden door HousingNet;
  • De bovenwoning heeft een woonoppervlakte van 94 m² en beschikt over 4 kamers, waarvan 3 slaapkamers;
  • De woning is gebouwd In 1998 en ligt in de buurt Overtoomse Veld in Amsterdam;
  • De woning beschikt onder andere over de volgende voorzieningen: Bad, Lift, Douche, Toilet.

Beschrijving

Meer woninginformatie bekijken?

Log in of registreer gratis.

Overdracht

Vraagprijs
€ 495.000 k.k.
Aangeboden sinds
03-09-2025
Status
Onder bod
Beschikbaar
In overleg
Bijzonderheden
Seniorenwoning
Onderhoudsstaat
Goed

Oppervlakte en inhoud

Woonoppervlakte
94 m²
Inhoud
282 m³

VvE informatie

Inschrijving KvK
Ja
Jaarlijkse vergadering
Ja
Periodieke bijdrage
Ja (€ 233 per maand)
Reservefonds aanwezig
Ja
Onderhoudsplan
Ja
Opstalverzekering
Ja

Bouw

Type woning
Appartement
Soort woning
Bovenwoning, Appartement
Soort bouw
Bestaande bouw
Bouwjaar
1998
Ligging
  • In een woonwijk
  • Nabij het openbaar vervoer
  • Beschut gelegen
  • Vrij uitzicht

Indeling

Aantal kamers
4
Aantal slaapkamers
3
Aantal badkamers
1
Aantal woonlagen
1
Voorzieningen
  • Bad
  • Lift
  • Douche
  • Toilet

Buitenruimte

Balkon
Aanwezig
Dakterras
Niet aanwezig

Energie

Isolatie
Spouwmuurisolatie, Dubbele beglazing, Dakisolatie, Muurisolatie
Verwarming
CV-ketel
Warm water
CV-ketel
Energielabel
A

Bergruimte

Schuur/Berging
Aanwezig

Parkeergelegenheid

Aanwezig
Ja
Soort parkeergelegenheid
Betaald
Meld een probleem met deze woning
Contact met de makelaar Bel