Contact met de makelaar

Deze woning is gevonden buiten ons eigen netwerk. Met de knop hieronder kom je direct bij de aanbieder terecht.

Nieuw

Kanaalstraat 103 D

Bekijk kaart
1054 XC Amsterdam (Overtoomse Sluis)
€ 499.000 k.k.
  • 66 m²
  • 3 kamers
  • 1989

Samenvatting

  • Deze woning wordt sinds 17 oktober 2025 aangeboden door Van Huis Uit Makelaars;
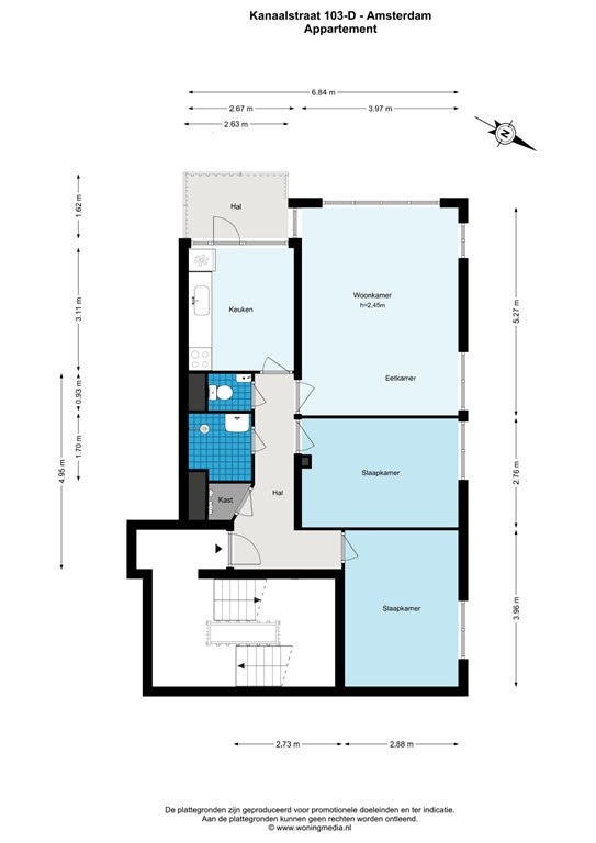
  • De tussenverdieping heeft een woonoppervlakte van 66 m² en beschikt over 3 kamers, waarvan 2 slaapkamers;
  • De woning is gebouwd In 1989 en ligt in de buurt Overtoomse Sluis in Amsterdam;
  • De woning beschikt onder andere over de volgende voorzieningen: Kabel TV, Glasvezelaansluiting, Internetaansluiting, Douche, Toilet, Wasruimte.

Beschrijving

Overdracht

Vraagprijs
€ 499.000 k.k.
Aangeboden sinds
17-10-2025
Status
Beschikbaar
Beschikbaar
In overleg
Bijzonderheden
Seniorenwoning
Onderhoudsstaat
Zeer goed

Oppervlakte en inhoud

Woonoppervlakte
66 m²
Perceeloppervlakte
1.133 m²
Inhoud
206 m³

VvE informatie

Inschrijving KvK
Ja
Jaarlijkse vergadering
Ja
Periodieke bijdrage
Ja (€ 138 per maand)
Reservefonds aanwezig
Ja
Onderhoudsplan
Ja
Opstalverzekering
Ja

Bouw

Type woning
Appartement
Soort woning
Tussenverdieping, Appartement
Soort bouw
Bestaande bouw
Bouwjaar
1989
Ligging
  • In het centrum
  • Nabij het openbaar vervoer
  • Nabij een school

Indeling

Aantal kamers
3
Aantal slaapkamers
2
Aantal badkamers
1
Aantal woonlagen
1
Voorzieningen
  • Kabel TV
  • Glasvezelaansluiting
  • Internetaansluiting
  • Douche
  • Toilet
  • Wasruimte

Buitenruimte

Balkon
Aanwezig
Dakterras
Niet aanwezig

Energie

Isolatie
Spouwmuurisolatie, Dubbele beglazing, Muurisolatie
Verwarming
CV-ketel
Cv-ketel
Kombi Kompakt HRE 24/18 A (Gas, uit 2019, Eigendom)
Energielabel
B

Bergruimte

Schuur/Berging
Aanwezig

Parkeergelegenheid

Aanwezig
Ja
Soort parkeergelegenheid
Openbaar
Meld een probleem met deze woning
Contact met de makelaar Bel