Contact met de makelaar

Deze woning is gevonden buiten ons eigen netwerk. Met de knop hieronder kom je direct bij de aanbieder terecht.

Nieuw

Pieter Aertszstraat 113 H

Bekijk kaart
1074 VP Amsterdam (Nieuwe Pijp)
€ 399.000 k.k.
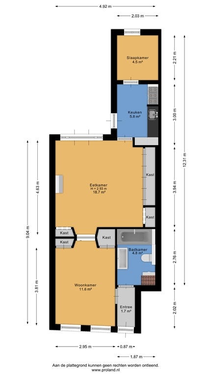
  • 53 m²
  • 3 kamers
  • 1911

Samenvatting

  • Deze woning wordt sinds 7 november 2025 aangeboden door Van Huis Uit Makelaars;
  • De benedenwoning heeft een woonoppervlakte van 53 m² en beschikt over 3 kamers, waarvan 1 slaapkamer;
  • De woning is gebouwd In 1911 en ligt in de buurt Nieuwe Pijp in Amsterdam;
  • De woning beschikt onder andere over de volgende voorzieningen: Bad, Kabel TV, Internetaansluiting, Douche, Toilet.

Beschrijving

Meer woninginformatie bekijken?

Log in of registreer gratis.

Overdracht

Vraagprijs
€ 399.000 k.k.
Aangeboden sinds
07-11-2025
Status
Beschikbaar
Beschikbaar
In overleg
Bijzonderheden
Seniorenwoning
Onderhoudsstaat
Redelijk

Oppervlakte en inhoud

Woonoppervlakte
53 m²
Perceeloppervlakte
91 m²
Inhoud
219 m³

VvE informatie

Inschrijving KvK
Ja
Jaarlijkse vergadering
Ja
Periodieke bijdrage
Ja (€ 80 per maand)
Reservefonds aanwezig
Ja
Onderhoudsplan
Ja
Opstalverzekering
Ja

Bouw

Type woning
Appartement
Soort woning
Benedenwoning, Appartement
Soort bouw
Bestaande bouw
Bouwjaar
1911
Ligging
  • Aan een rustige weg
  • Nabij het openbaar vervoer

Indeling

Aantal kamers
3
Aantal slaapkamers
1
Aantal badkamers
1
Aantal woonlagen
1
Voorzieningen
  • Bad
  • Kabel TV
  • Internetaansluiting
  • Douche
  • Toilet

Buitenruimte

Balkon
Niet aanwezig
Tuin
Aanwezig (25 m², gelegen op het noordoosten)
Tuinbeschrijving
achtertuin
Dakterras
Niet aanwezig

Energie

Isolatie
Dubbele beglazing, Muurisolatie
Verwarming
CV-ketel
Warm water
CV-ketel
Cv-ketel
HRE Kombi Kompakt (Gas, uit 2011, Eigendom)

Bergruimte

Schuur/Berging
Aanwezig

Parkeergelegenheid

Aanwezig
Ja
Soort parkeergelegenheid
Openbaar
Meld een probleem met deze woning
Contact met de makelaar Bel