Contact met de makelaar

Deze woning is gevonden buiten ons eigen netwerk. Met de knop hieronder kom je direct bij de aanbieder terecht.

Nieuw

Agamemnonstraat 13 H

Bekijk kaart
1076 LN Amsterdam (Stadionbuurt)
€ 1.150.000 k.k.
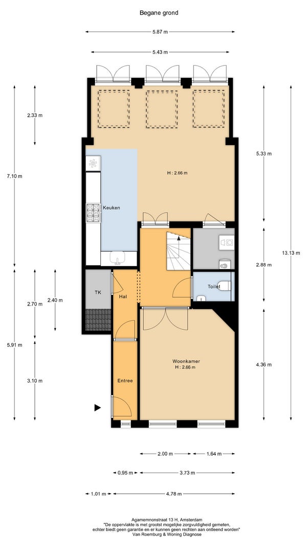
  • 125 m²
  • 5 kamers
  • 1930

Samenvatting

  • Deze woning wordt sinds 6 oktober 2025 aangeboden door Deltam Makelaardij;
  • Het dubbele benedenhuis heeft een woonoppervlakte van 125 m² en beschikt over 5 kamers, waarvan 3 slaapkamers;
  • De woning is gebouwd In 1930 en ligt in de buurt Stadionbuurt in Amsterdam;
  • De woning beschikt onder andere over de volgende voorzieningen: Glasvezelaansluiting, Mechanische ventilatie, Douche, Bergruimte, Toilet, Wasruimte.

Beschrijving

Overdracht

Vraagprijs
€ 1.150.000 k.k.
Aangeboden sinds
06-10-2025
Status
Beschikbaar
Beschikbaar
In overleg
Bijzonderheden
Beschermd stads- of dorpsgezicht
Onderhoudsstaat
Goed

Oppervlakte en inhoud

Woonoppervlakte
125 m²
Inhoud
440 m³

VvE informatie

Inschrijving KvK
Ja
Jaarlijkse vergadering
Nee
Periodieke bijdrage
Ja (€ 150 per maand)
Reservefonds aanwezig
Nee
Onderhoudsplan
Nee
Opstalverzekering
Ja

Bouw

Type woning
Appartement
Soort woning
Dubbel benedenhuis, Appartement
Soort bouw
Bestaande bouw
Bouwjaar
1930
Ligging
In een woonwijk

Indeling

Aantal kamers
5
Aantal slaapkamers
3
Aantal badkamers
1
Aantal woonlagen
2
Voorzieningen
  • Glasvezelaansluiting
  • Mechanische ventilatie
  • Douche
  • Bergruimte
  • Toilet
  • Wasruimte

Buitenruimte

Balkon
Aanwezig
Tuin
Aanwezig (45 m², gelegen op het oosten)
Tuinbeschrijving
achtertuin
Dakterras
Niet aanwezig

Energie

Isolatie
HR glas
Verwarming
CV-ketel
Warm water
CV-ketel
Cv-ketel
Intergas (Gas, uit 2013, Eigendom)
Energielabel
C

Bergruimte

Schuur/Berging
Aanwezig
Omschrijving
Vrijstaand hout

Parkeergelegenheid

Aanwezig
Ja
Soort parkeergelegenheid
Openbaar

Garage

Aanwezig
Nee
Meld een probleem met deze woning
Contact met de makelaar Bel