- 53 m²
- 2 kamers
- 1926
Samenvatting
- Deze woning wordt sinds 11 oktober 2025 aangeboden door Den Uyl Real Estate;
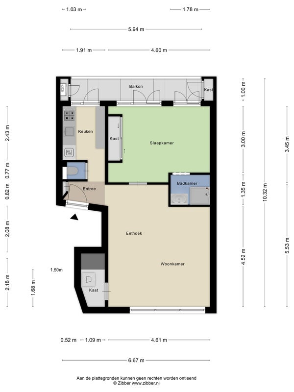
- De bovenwoning heeft een woonoppervlakte van 53 m² en beschikt over 2 kamers, waarvan 1 slaapkamer;
- De woning is gebouwd In 1926 en ligt in de buurt Chassébuurt in Amsterdam;
- De woning beschikt onder andere over de volgende voorzieningen: Kabel TV, Mechanische ventilatie, Douche, Bergruimte, Toilet, Wasruimte.
Beschrijving
Overdracht
- Vraagprijs
- € 475.000 k.k.
- Aangeboden sinds
- 11-10-2025
- Status
- Beschikbaar
- Beschikbaar
- In overleg
- Onderhoudsstaat
- Zeer goed
Oppervlakte en inhoud
- Woonoppervlakte
- 53 m²
- Perceeloppervlakte
- 53 m²
- Inhoud
- 178 m³
VvE informatie
- Inschrijving KvK
- Ja
- Jaarlijkse vergadering
- Ja
- Periodieke bijdrage
- Ja (€ 96 per maand)
- Reservefonds aanwezig
- Ja
- Onderhoudsplan
- Ja
- Opstalverzekering
- Ja
Bouw
- Type woning
- Appartement
- Soort woning
- Bovenwoning, Appartement
- Soort bouw
- Bestaande bouw
- Bouwjaar
- 1926
- Ligging
-
- Aan het water
- In het centrum
- In een woonwijk
- Vrij uitzicht
Indeling
- Aantal kamers
- 2
- Aantal slaapkamers
- 1
- Aantal badkamers
- 1
- Aantal woonlagen
- 1
- Voorzieningen
-
- Kabel TV
- Mechanische ventilatie
- Douche
- Bergruimte
- Toilet
- Wasruimte
Buitenruimte
- Balkon
- Aanwezig
- Tuin
- Niet aanwezig
- Dakterras
- Niet aanwezig
Energie
- Isolatie
- Dubbele beglazing
- Verwarming
- CV-ketel
- Warm water
- CV-ketel
- Energielabel
- C
Parkeergelegenheid
- Aanwezig
- Ja
- Soort parkeergelegenheid
- Openbaar
Garage
- Aanwezig
- Nee