Contact met de makelaar

Deze woning is gevonden buiten ons eigen netwerk. Met de knop hieronder kom je direct bij de aanbieder terecht.

Nieuw

Pieter Aertszstraat

Bekijk kaart
1073 SL Amsterdam (Nieuwe Pijp)
€ 1.075.000 k.k.
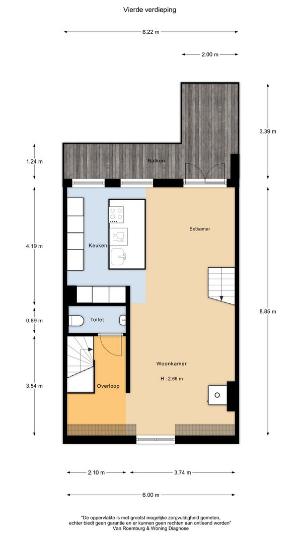
  • 120 m²
  • 4 kamers
  • 1908

Samenvatting

  • Deze woning wordt sinds 20 januari 2026 aangeboden door PB Makelaars o.z.;
  • De galerijflat heeft een woonoppervlakte van 120 m² en beschikt over 4 kamers, waarvan 3 slaapkamers;
  • De woning is gebouwd In 1908 en ligt in de buurt Nieuwe Pijp in Amsterdam.

Beschrijving

Dit appartement is gelegen aan een rustige weg in een woonwijk en biedt een woonoppervlakte van 120 m². Gevestigd op de derde verdieping, heeft het 4 kamers, waaronder 3 slaapkamers en 1 badkamer die voorzien is van een ligbad, inloopdouche en dubbele wastafel. De woonkamer heeft een oppervlakte van 33 m² en de woning beslaat 2 woonlagen. Het appartement is gebouwd in 1908, maakt deel uit van een beschermd stads- of dorpsgezicht, en beschikt over een dakterras van 57 m². Voor de verwarming zorgt een C.V.-ketel uit 2019 en er is airconditioning aanwezig. De VVE-bijdrage bedraagt € 180,- per maand. Het gebouw is goed onderhouden en biedt mogelijkheden voor betaald parkeren en het verkrijgen van parkeervergunningen.

Overdracht

Vraagprijs
€ 1.075.000 k.k.
Aangeboden sinds
20-01-2026
Status
Beschikbaar
Beschikbaar
Per direct

Oppervlakte en inhoud

Woonoppervlakte
120 m²

Bouw

Type woning
Appartement
Soort woning
Galerijflat
Soort bouw
Bestaande bouw
Bouwjaar
1908

Indeling

Aantal kamers
4
Aantal slaapkamers
3
Aantal badkamers
1

Buitenruimte

Dakterras
Niet aanwezig

Energie

Energielabel
C
Meld een probleem met deze woning