Contact met de makelaar

Deze woning is gevonden buiten ons eigen netwerk. Met de knop hieronder kom je direct bij de aanbieder terecht.

Onder bod

Gentiaanplein 44

Bekijk kaart
1031 AW Amsterdam (Volewijck)
€ 375.000 k.k.
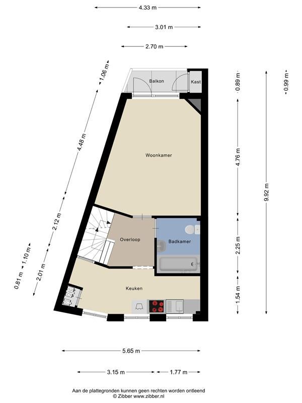
  • 74 m²
  • 3 kamers
  • 1925

Samenvatting

  • Deze woning wordt sinds 4 weken aangeboden door Hoekstra & van Eck Amsterdam Noord;
  • De maisonnette heeft een woonoppervlakte van 74 m² en beschikt over 3 kamers, waarvan 2 slaapkamers;
  • De woning is gebouwd In 1925 en ligt in de buurt Volewijck in Amsterdam.

Beschrijving

Meer woninginformatie bekijken?

Log in of registreer gratis.

Overdracht

Vraagprijs
€ 375.000 k.k.
Aangeboden sinds
09-10-2025
Status
Onder bod
Beschikbaar
In overleg

Oppervlakte en inhoud

Woonoppervlakte
74 m²
Inhoud
244 m³

Bouw

Type woning
Appartement
Soort woning
Maisonnette, Appartement
Soort bouw
Bestaande bouw
Bouwjaar
1925

Indeling

Aantal kamers
3
Aantal slaapkamers
2
Aantal woonlagen
2

Buitenruimte

Balkon
Aanwezig
Tuin
Niet aanwezig
Dakterras
Niet aanwezig

Energie

Energielabel
D

Garage

Aanwezig
Nee
Meld een probleem met deze woning
Contact met de makelaar Bel