Contact met de makelaar

Deze woning is gevonden buiten ons eigen netwerk. Met de knop hieronder kom je direct bij de aanbieder terecht.

Nieuw

Argonautenstraat 82 1

Bekijk kaart
1076 KV Amsterdam (Stadionbuurt)
€ 500.000 k.k.
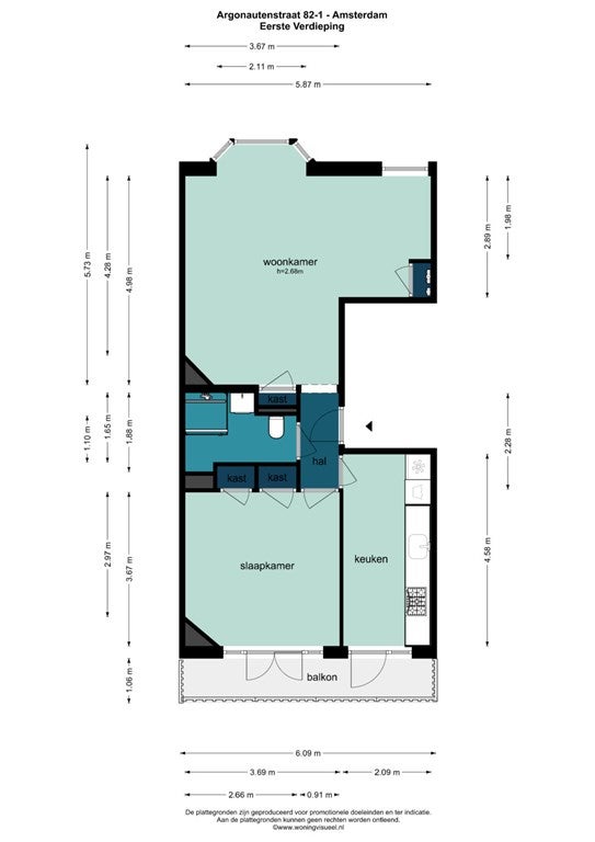
  • 58 m²
  • 2 kamers
  • 1930

Samenvatting

  • Deze woning wordt sinds 7 november 2025 aangeboden door 27 Huis Makelaars;
  • De bovenwoning heeft een woonoppervlakte van 58 m² en beschikt over 2 kamers, waarvan 1 slaapkamer;
  • De woning is gebouwd In 1930 en ligt in de buurt Stadionbuurt in Amsterdam;
  • De woning beschikt onder andere over de volgende voorzieningen: Kabel TV, Internetaansluiting, Douche, Toilet.

Beschrijving

Overdracht

Vraagprijs
€ 500.000 k.k.
Aangeboden sinds
07-11-2025
Status
Beschikbaar
Beschikbaar
In overleg
Onderhoudsstaat
Goed

Oppervlakte en inhoud

Woonoppervlakte
58 m²
Perceeloppervlakte
66 m²
Inhoud
199 m³

VvE informatie

Inschrijving KvK
Ja
Jaarlijkse vergadering
Ja
Periodieke bijdrage
Ja (€ 163 per maand)
Reservefonds aanwezig
Ja
Opstalverzekering
Ja

Bouw

Type woning
Appartement
Soort woning
Bovenwoning, Appartement
Soort bouw
Bestaande bouw
Bouwjaar
1930
Ligging
  • Aan een rustige weg
  • In een woonwijk
  • Nabij het openbaar vervoer

Indeling

Aantal kamers
2
Aantal slaapkamers
1
Aantal badkamers
1
Aantal woonlagen
1
Voorzieningen
  • Kabel TV
  • Internetaansluiting
  • Douche
  • Toilet

Buitenruimte

Balkon
Aanwezig
Dakterras
Niet aanwezig

Energie

Verwarming
CV-ketel
Warm water
CV-ketel
Energielabel
D

Parkeergelegenheid

Aanwezig
Ja
Soort parkeergelegenheid
Openbaar
Meld een probleem met deze woning
Contact met de makelaar Bel