Contact met de makelaar

Deze woning is gevonden buiten ons eigen netwerk. Met de knop hieronder kom je direct bij de aanbieder terecht.

Nieuw

Bloemgracht 20 1

Bekijk kaart
1015 TJ Amsterdam (Jordaan)
€ 1.650.000 k.k.
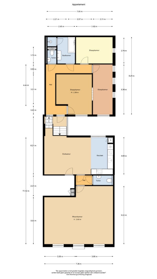
  • 140 m²
  • 6 kamers
  • 1849

Samenvatting

  • Deze woning wordt sinds 10 oktober 2025 aangeboden door Keizerskroon makelaars;
  • De bovenwoning heeft een woonoppervlakte van 140 m² en beschikt over 6 kamers, waarvan 3 slaapkamers;
  • De woning is gebouwd In 1849 en ligt in de buurt Jordaan in Amsterdam;
  • De woning beschikt onder andere over de volgende voorzieningen: Bad, Kabel TV, Frans balkon, Mechanische ventilatie, Dakterras, Douche, Toilet.

Beschrijving

Overdracht

Vraagprijs
€ 1.650.000 k.k.
Aangeboden sinds
10-10-2025
Status
Beschikbaar
Beschikbaar
In overleg
Onderhoudsstaat
Goed

Oppervlakte en inhoud

Woonoppervlakte
140 m²
Inhoud
369 m³

VvE informatie

Inschrijving KvK
Ja
Jaarlijkse vergadering
Ja
Periodieke bijdrage
Ja (€ 140 per maand)
Reservefonds aanwezig
Nee
Onderhoudsplan
Ja
Opstalverzekering
Ja

Bouw

Type woning
Appartement
Soort woning
Bovenwoning, Appartement
Soort bouw
Bestaande bouw
Bouwjaar
1849
Ligging
  • Aan vaarwater
  • Aan het water
  • In het centrum
  • Vrij uitzicht

Indeling

Aantal kamers
6
Aantal slaapkamers
3
Aantal badkamers
1
Aantal woonlagen
1
Voorzieningen
  • Bad
  • Kabel TV
  • Frans balkon
  • Mechanische ventilatie
  • Dakterras
  • Douche
  • Toilet

Buitenruimte

Balkon
Aanwezig
Tuin
Aanwezig
Tuinbeschrijving
zonneterras
Dakterras
Aanwezig

Energie

Verwarming
CV-ketel
Warm water
CV-ketel
Energielabel
D

Parkeergelegenheid

Aanwezig
Ja
Soort parkeergelegenheid
Openbaar

Garage

Aanwezig
Nee
Meld een probleem met deze woning
Contact met de makelaar Bel