Contact met de aanbieder

Deze woning is gevonden buiten ons eigen netwerk. Via de knop hieronder ga je direct naar de website van de aanbieder.

Nieuw

Keizersgracht 24 C

Bekijk kaart
1015 CR Amsterdam (Grachtengordel-West)
€ 800.000 k.k.
  • 101 m²
  • 2 kamers
  • 1800

Samenvatting

  • Deze woning wordt sinds 23 februari 2026 aangeboden door Vondel Makelaars;
  • De galerijflat heeft een woonoppervlakte van 101 m² en beschikt over 2 kamers, waarvan 1 slaapkamer;
  • De woning is gebouwd In 1800 en ligt in de buurt Grachtengordel-West in Amsterdam.

Beschrijving

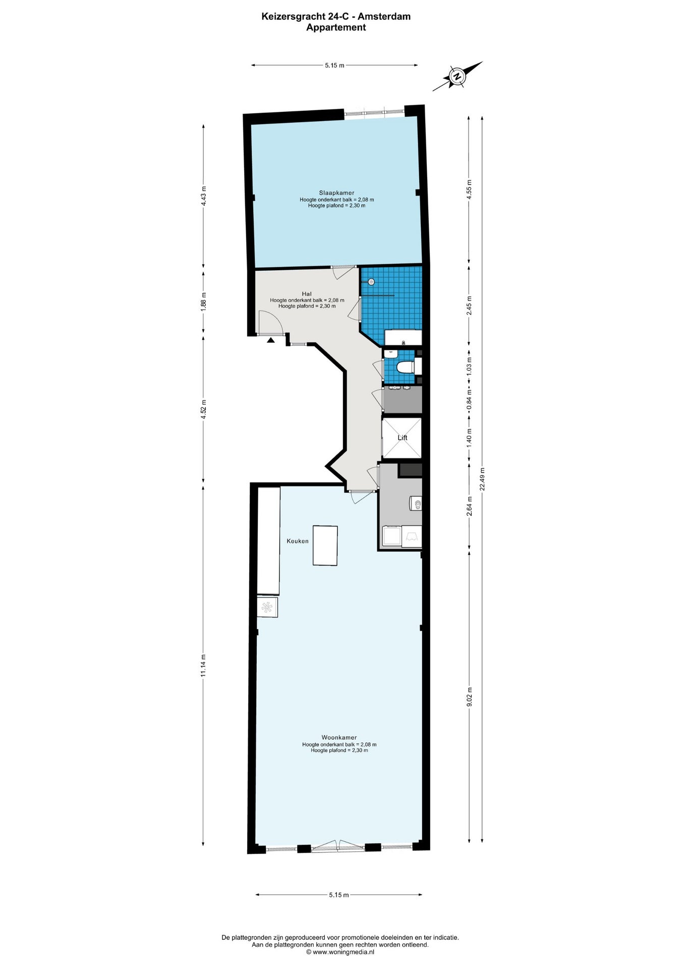
Dit appartement van ongeveer 101 m² aan de Keizersgracht is een bijzonder woonobject binnen een rijksmonument en biedt uitzicht op de grachten. U komt binnen via een gemeenschappelijke entree, die het karakter van het pand ademt. Met de lift of via het trappenhuis bereikt u de tweede verdieping, waar de ruime woonkamer met openslaande deuren naar een Frans balkon is gelegen. De open keuken is uitgerust met inbouwapparatuur en biedt voldoende ruimte voor een grote eettafel. Achterin bevindt zich een zeer ruime slaapkamer met een praktische kastenwand. De badkamer is voorzien van een inloopdouche en vloerverwarming, terwijl het appartement verder beschikt over een aparte wasruimte en directe lifttoegang. Het is gelegen nabij de Brouwersgracht en de levendige Herenstraat. Deze locatie maakt deel uit van het UNESCO Werelderfgoed en biedt een rijke omgeving vol cultuur en eetgelegenheden.

Overdracht

Vraagprijs
€ 800.000 k.k.
Prijs per m²
€ 7.921
Aangeboden sinds
23-02-2026
Status
Beschikbaar
Beschikbaar
Per direct

Oppervlakte en inhoud

Woonoppervlakte
101 m²

Bouw

Type woning
Appartement
Soort woning
Galerijflat
Soort bouw
Bestaande bouw
Bouwjaar
1800

Indeling

Aantal kamers
2
Aantal slaapkamers
1
Aantal badkamers
1

Buitenruimte

Dakterras
Niet aanwezig
Meld een probleem met deze woning