Contact met de makelaar

Deze woning is gevonden buiten ons eigen netwerk. Met de knop hieronder kom je direct bij de aanbieder terecht.

Nieuw

Hoofddorpplein 15 3

Bekijk kaart
1059 CV Amsterdam (Hoofddorppleinbuurt)
€ 950.000 k.k.
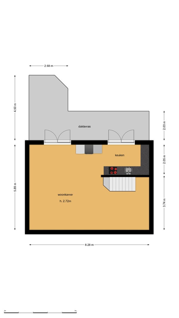
  • 116 m²
  • 6 kamers
  • 1928

Samenvatting

  • Deze woning wordt sinds 22 oktober 2025 aangeboden door Booij Makelaardij o.z.;
  • De bovenwoning heeft een woonoppervlakte van 116 m² en beschikt over 6 kamers, waarvan 4 slaapkamers;
  • De woning is gebouwd In 1928 en ligt in de buurt Hoofddorppleinbuurt in Amsterdam;
  • De woning beschikt onder andere over de volgende voorzieningen: Mechanische ventilatie, Dakterras, Douche, Toilet, Wasruimte.

Beschrijving

Meer woninginformatie bekijken?

Log in of registreer gratis.

Overdracht

Vraagprijs
€ 950.000 k.k.
Aangeboden sinds
22-10-2025
Status
Beschikbaar
Beschikbaar
In overleg
Onderhoudsstaat
Goed

Oppervlakte en inhoud

Woonoppervlakte
116 m²
Perceeloppervlakte
116 m²
Inhoud
422 m³

VvE informatie

Inschrijving KvK
Ja
Jaarlijkse vergadering
Ja
Periodieke bijdrage
Ja (€ 117 per maand)
Reservefonds aanwezig
Ja
Onderhoudsplan
Nee
Opstalverzekering
Ja

Bouw

Type woning
Appartement
Soort woning
Bovenwoning, Appartement
Soort bouw
Bestaande bouw
Bouwjaar
1928
Ligging
Aan een drukke weg

Indeling

Aantal kamers
6
Aantal slaapkamers
4
Aantal badkamers
3
Aantal woonlagen
2
Voorzieningen
  • Mechanische ventilatie
  • Dakterras
  • Douche
  • Toilet
  • Wasruimte

Buitenruimte

Balkon
Aanwezig
Tuin
Niet aanwezig
Dakterras
Aanwezig

Energie

Isolatie
Dubbele beglazing, Dakisolatie, Muurisolatie
Verwarming
CV-ketel
Warm water
CV-ketel
Energielabel
C

Bergruimte

Schuur/Berging
Aanwezig
Omschrijving
Inpandig

Parkeergelegenheid

Aanwezig
Ja
Soort parkeergelegenheid
Betaald

Garage

Aanwezig
Nee
Meld een probleem met deze woning
Contact met de makelaar Bel