Contact met de makelaar

Deze woning is gevonden buiten ons eigen netwerk. Met de knop hieronder kom je direct bij de aanbieder terecht.

Nieuw

Saturnusstraat

Bekijk kaart
5721 BR Asten (Sterrenbuurt)
€ 525.000 k.k.
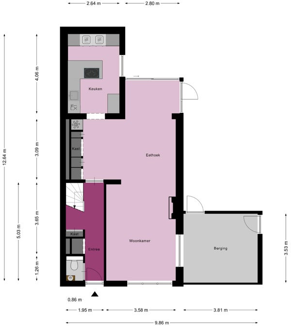
  • 138 m²
  • 6 kamers
  • 1972

Samenvatting

  • Deze woning wordt sinds 26 oktober 2025 aangeboden door Beter Wonen makelaardij Helma de Corte;
  • De galerijflat heeft een woonoppervlakte van 138 m² en beschikt over 6 kamers, waarvan 4 slaapkamers;
  • De woning is gebouwd In 1972 en ligt in de buurt Sterrenbuurt in Asten.

Beschrijving

Meer woninginformatie bekijken?

Log in of registreer gratis.

Overdracht

Vraagprijs
€ 525.000 k.k.
Aangeboden sinds
26-10-2025
Status
Beschikbaar
Beschikbaar
In overleg

Oppervlakte en inhoud

Woonoppervlakte
138 m²
Perceeloppervlakte
267 m²

Bouw

Type woning
Appartement
Soort woning
Galerijflat
Soort bouw
Bestaande bouw
Bouwjaar
1972

Indeling

Aantal kamers
6
Aantal slaapkamers
4
Aantal badkamers
1

Buitenruimte

Dakterras
Niet aanwezig
Meld een probleem met deze woning