Contact met de makelaar

Deze woning is gevonden buiten ons eigen netwerk. Met de knop hieronder kom je direct bij de aanbieder terecht.

Cox

Bekijk kaart
5721 TR Asten (Appelbuurt)
€ 539.000 k.k.
  • 140 m²
  • 5 kamers
  • 2000

Samenvatting

  • Deze woning wordt sinds 6 weken aangeboden door Beter Wonen makelaardij Helma de Corte;
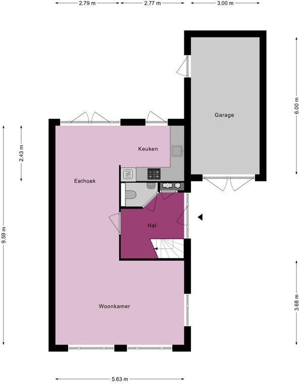
  • De galerijflat heeft een woonoppervlakte van 140 m² en beschikt over 5 kamers, waarvan 4 slaapkamers;
  • De woning is gebouwd In 2000 en ligt in de buurt Appelbuurt in Asten.

Beschrijving

Overdracht

Vraagprijs
€ 539.000 k.k.
Aangeboden sinds
19-10-2025
Status
Beschikbaar
Beschikbaar
In overleg

Oppervlakte en inhoud

Woonoppervlakte
140 m²
Perceeloppervlakte
240 m²

Bouw

Type woning
Appartement
Soort woning
Galerijflat
Soort bouw
Bestaande bouw
Bouwjaar
2000

Indeling

Aantal kamers
5
Aantal slaapkamers
4
Aantal badkamers
1

Buitenruimte

Dakterras
Niet aanwezig

Energie

Energielabel
A
Meld een probleem met deze woning