- 100 m²
- 3 kamers
- 1920
Samenvatting
- Deze woning wordt sinds 20 januari 2026 aangeboden door Homecrew;
- De maisonnette heeft een woonoppervlakte van 100 m² en beschikt over 3 kamers, waarvan 2 slaapkamers;
- De woning is gebouwd In 1920 en ligt in de buurt Spiegelzicht in Bussum;
- De woning beschikt onder andere over de volgende voorzieningen: Dakterras, Zonnecollectoren, Bergruimte.
Beschrijving
ENGLISH BELOW
Gelegen aan de Herenstraat in Bussum ligt dit unieke en riante 3-kamer appartement. Herenstraat 38-B1 heeft een woonoppervlakte van 100 m2. De woning, origineel uit 1929, is in 2017/2018 volledig vernieuwbouw en heeft een energielabel A. Het energielabel A is beter dan het gemiddelde label (D) in de straat.
Uniek wonen in Bussum, dan ben je hier aan het juiste adres. Herenstraat 38-B1 is gelegen in de leuke buurt Bussum Centrum. Dit is een kindvriendelijke omgeving met gemiddeld veel families. Tevens is het een redelijk rustige omgeving gekeken naar de bevolkingsdichtheid.
De woning is zeer goed bereikbaar met veel faciliteiten in de buurt. Gelegen op loopafstand van het centrum van Bussum, loopafstand van een supermarkt en loopafstand van 2 treinstations. Verder is de eerste uitvalsweg in de nabije omgeving op slechts 5 minuten rijden.
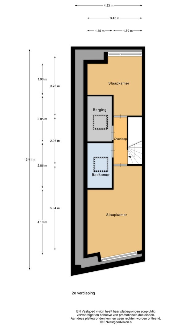
Indeling: Het appartement is gelegen op de 1e en 2e verdieping, een zogenaamde maisonnette. De 1e verdieping, van circa 50 m2, bestaat uit een zeer lichte woonkamer en aan de achterzijde een open keuken met een aansluitend dakterras van 12 m2. Dit terras heeft vanaf de middag tot het einde van de dag zon. Via de gang, voorzien van een apart toilet, ga je naar de 2e verdieping. Hier bevinden zich 2 zeer ruime slaapkamers (18 m2 en 20 m2). Daarnaast is er een badkamer voorzien van inloopdouche en toilet en een apart toilet te vinden op deze verdieping
De woning is altijd verhuurd geweest, dus de niet bewoningsclausule zal worden opgenomen
--
ENGLISH
Located on Herenstraat in Bussum, you'll find this unique and spacious 3-room apartment. Herenstraat 38-B1 has a living area of ??100 m2. Originally built in 1929, the apartment was completely renovated in 2017/2018 and has an energy label A. This is better than the average label (D) for the street.
Looking for unique living in Bussum? Then you've come to the right place. Herenstraat 38-B1 is situated in the pleasant Bussum Centrum neighborhood. This is a child-friendly area with an average number of families. It is also a relatively quiet area considering the population density.
The apartment is easily accessible with many amenities nearby. It's within walking distance of Bussum's city center, a supermarket, and two train stations. Furthermore, the nearest major road is only a 5-minute drive away.
Layout: The apartment is located on the first and second floors, in a so-called maisonette. The first floor, approximately 50 m2, comprises a very bright living room and an open-plan kitchen at the rear, with an adjoining 12 m2 roof terrace. This terrace enjoys sun from midday until late at night. The hallway, with a separate toilet, leads to the second floor. Here you'll find two very spacious bedrooms (18 m2 and 20 m2). There is also a bathroom with a walk-in shower and toilet, and a separate toilet on this floor.
The property has always been rented out, so the non-occupancy clause will be included.
Overdracht
- Vraagprijs
- € 499.000 k.k.
- Aangeboden sinds
- 20-01-2026
- Status
- Beschikbaar
- Beschikbaar
- Per 01-02-2026
- Onderhoudsstaat
- Goed
Oppervlakte en inhoud
- Woonoppervlakte
- 100 m²
- Inhoud
- 250 m³
VvE informatie
- Inschrijving KvK
- Ja
- Jaarlijkse vergadering
- Nee
- Periodieke bijdrage
- Ja (€ 250 per maand)
- Reservefonds aanwezig
- Nee
- Onderhoudsplan
- Nee
- Opstalverzekering
- Ja
Bouw
- Type woning
- Appartement
- Soort woning
- Maisonnette
- Soort bouw
- Bestaande bouw
- Bouwjaar
- 1920
Indeling
- Aantal kamers
- 3
- Aantal slaapkamers
- 2
- Aantal woonlagen
- 1
- Voorzieningen
-
- Dakterras
- Zonnecollectoren
- Bergruimte
Buitenruimte
- Balkon
- Niet aanwezig
- Tuin
- Niet aanwezig
- Dakterras
- Aanwezig
Energie
- Verwarming
- CV-ketel
- Energielabel
- A
Garage
- Aanwezig
- Nee