Contact met de makelaar

Deze woning is gevonden buiten ons eigen netwerk. Met de knop hieronder kom je direct bij de aanbieder terecht.

Nieuw

Vlamingpolderweg

Bekijk kaart
4506 HZ Cadzand (Cadzand-Bad)
€ 695.000 k.k.
  • 86 m²
  • 3 kamers
  • 2017

Samenvatting

  • Deze woning wordt sinds 22 januari 2026 aangeboden door De Dobbelaere Makelaars;
  • De galerijflat heeft een woonoppervlakte van 86 m² en beschikt over 3 kamers, waarvan 2 slaapkamers;
  • De woning is gebouwd In 2017 en ligt in de buurt Cadzand-Bad in Cadzand.

Beschrijving

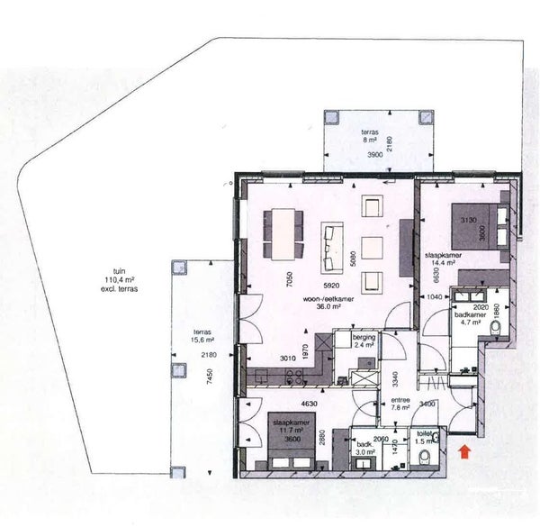
In het charmante Cadzand-Bad bieden we een ruim gemeubileerd appartement te koop aan, gelegen op de begane grond van gebouw VIII in Duinhof Oost. Dit appartement heeft twee slaapkamers en een zonnige tuin van circa 110 m², met twee terrassen van ongeveer 24 m², ideaal om te genieten van de zon. De lichte woonkamer en open keuken zijn uitgerust met moderne apparaten, zoals een inductiekookplaat en vaatwasser. Beide slaapkamers hebben een eigen badkamer, en er is een aparte toiletruimte. Het appartement beschikt over een hal met open garderobekast en een berging met CV-ketel. Inclusief een open parkeerplaats en een afsluitbare berging in de parkeerkelder. Het appartement is instapklaar, heeft energielabel A en de maandelijkse servicekosten bedragen € 331,24.

Overdracht

Vraagprijs
€ 695.000 k.k.
Aangeboden sinds
22-01-2026
Status
Beschikbaar
Beschikbaar
Per direct

Oppervlakte en inhoud

Woonoppervlakte
86 m²

Bouw

Type woning
Appartement
Soort woning
Galerijflat
Soort bouw
Bestaande bouw
Bouwjaar
2017

Indeling

Aantal kamers
3
Aantal slaapkamers
2
Aantal badkamers
2

Buitenruimte

Dakterras
Niet aanwezig

Energie

Energielabel
A
Meld een probleem met deze woning