Contact met de makelaar

Deze woning is gevonden buiten ons eigen netwerk. Met de knop hieronder kom je direct bij de aanbieder terecht.

Lehárstraat 50

Bekijk kaart
2901 PD Capelle aan den IJssel (Puccinibuurt)
€ 393.000 k.k.
  • 78 m²
  • 3 kamers
  • 1997

Samenvatting

  • Deze woning wordt sinds 6 weken aangeboden door Kok Makelaars;
  • De galerijflat heeft een woonoppervlakte van 78 m² en beschikt over 3 kamers, waarvan 2 slaapkamers;
  • De woning is gebouwd In 1997 en ligt in de buurt Puccinibuurt in Capelle aan den IJssel;
  • De woning beschikt onder andere over de volgende voorzieningen: Airconditioning, Bad, Lift, Mechanische ventilatie, Buitenzonwering, Douche, Schuifdeuren, Toilet.

Beschrijving

Een super leuk 3-kamer APPARTEMENT met een ruim en zonnig balkon!

Gelegen in het gewilde ’s-Gravenland biedt dit goed verzorgde appartement een gezellige woonkamer, een nette keuken en badkamer, twee goed formaat slaapkamers en een zonnig balkon op het zuiden. Hier kunt u heerlijk genieten van de middag- en avondzon!

Zie onderstaande hoofdkenmerken met nadere omschrijving en de uitgebreide fotoreportage. Zelf sfeer proeven in de woning? Bel met Kok Makelaars voor een bezichtiging!

Hoofdkenmerken:

  • Gezellige woonkamer met toegang tot balkon (zuiden)
  • Badkamer met ligbad en douchecabine
  • 2 goed formaat slaapkamers
  • Tweede verdieping
  • Airconditioning aanwezig
  • Lift aanwezig
  • Privé berging in de onderbouw
  • Energielabel A
  • Woonoppervlakte ca. 78 m²

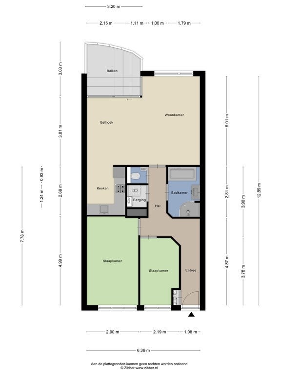
INDELING (voor de afmetingen, zie de plattegrondtekeningen)

Gelegen op korte afstand van allerlei voorzieningen, zoals winkelcentrum Puccinipassage, metrostation Capelsebrug, de Hollandsche IJssel, scholen, gezondheidszorg, uitvalswegen, etc.

Begane grond:
Gesloten entree met bellentableau en intercom met videofoon, brievenbussen, en toegang tot liftinstallatie, trappenhuis en bergingen.

Tweede verdieping:
Het appartement is (m.u.v. de natte ruimtes) voorzien van een laminaat vloerafwerking.

Entree/hal, met toegang tot woonkamer, 2 slaapkamers, badkamer, toilet en inloopkast met wasmachine- en drogeraansluiting en de opstelling cv-ketel.

Woonkamer, een gezellige woonkamer voorzien van airconditioning en zonwering, met toegang tot het balkon via een brede aluminium schuifpui.

Keuken, voorzien van een keukenblok in L-vormige opstelling, met gaskookplaat en afzuigkap.

Slaapkamer 1, een heerlijke kamer gelegen aan de voorzijde.
Slaapkamer 2, een extra kamer eveneens gelegen aan de voorzijde.

Badkamer, een ruime badkamer met grotendeels tegels op de muren, voorzien van een ligbad met thermostaatkraan, ruime douchecabine met thermostaatkraan, wastafel met onderladen en spiegel met verlichting, mechanische ventilatie en een badkamerradiator.

Toilet, gedeeltelijk betegeld, voorzien van aan hangend closet en fonteintje.

Balkon, een royaal en zonnig balkon (zuiden) met levendig uitzicht, voorzien van tegels op de vloer.

Bijzonderheden:

  • Cv-ketel Intergas HRE 28/24 CW4 (2022)
  • Houten kozijnen
  • Dubbele beglazing
  • Privé berging in de onderbouw, voorzien van elektra en verlichting
  • Energielabel A
  • Actieve VvE, bijdrage ca. 169,-- per maand
  • Bouwjaar ca. 1997

Oplevering: in nader overleg met de verkoper, op korte termijn mogelijk.

Bij het samenstellen van deze verkoopinformatie en (plattegrond)tekeningen zijn we nauwkeurig te werk gegaan, aan onjuistheden en/of onvolkomenheden kunt u echter geen rechten ontlenen. Daarnaast aanvaardt de makelaar of zijn opdrachtgever geen aansprakelijkheid voor de in de verkoopinformatie en (plattegrond)tekeningen verstrekte informatie.

Overdracht

Vraagprijs
€ 393.000 k.k.
Aangeboden sinds
14-11-2025
Status
Beschikbaar
Beschikbaar
In overleg
Bijzonderheden
Seniorenwoning
Onderhoudsstaat
Goed

Oppervlakte en inhoud

Woonoppervlakte
78 m²
Inhoud
256 m³

VvE informatie

Inschrijving KvK
Ja
Jaarlijkse vergadering
Ja
Periodieke bijdrage
Ja (€ 169 per maand)
Reservefonds aanwezig
Ja
Opstalverzekering
Ja

Bouw

Type woning
Appartement
Soort woning
Galerijflat, Appartement
Soort bouw
Bestaande bouw
Bouwjaar
1997
Ligging
  • Aan een rustige weg
  • In een woonwijk
  • Nabij het openbaar vervoer
  • Nabij een school

Indeling

Aantal kamers
3
Aantal slaapkamers
2
Aantal badkamers
1
Aantal woonlagen
1
Voorzieningen
  • Airconditioning
  • Bad
  • Lift
  • Mechanische ventilatie
  • Buitenzonwering
  • Douche
  • Schuifdeuren
  • Toilet

Buitenruimte

Balkon
Aanwezig
Dakterras
Niet aanwezig

Energie

Isolatie
Dubbele beglazing
Verwarming
CV-ketel
Warm water
CV-ketel
Cv-ketel
Intergas HRE 28/24 CW4 (Gas, uit 2022, Eigendom)
Energielabel
A

Bergruimte

Schuur/Berging
Aanwezig

Parkeergelegenheid

Aanwezig
Ja
Soort parkeergelegenheid
Openbaar
Meld een probleem met deze woning