Contact met de makelaar

Deze woning is gevonden buiten ons eigen netwerk. Met de knop hieronder kom je direct bij de aanbieder terecht.

Verkocht onder voorbehoud

Diabellistraat 45

Bekijk kaart
2901 KC Capelle aan den IJssel (Paganinibuurt)
€ 575.000 k.k.
  • 120 m²
  • 5 kamers
  • 1997

Samenvatting

  • Deze woning wordt sinds 6 weken aangeboden door Kok Makelaars;
  • De tussenwoning heeft een woonoppervlakte van 120 m² en beschikt over 5 kamers, waarvan 4 slaapkamers;
  • De woning is gebouwd In 1997 en ligt in de buurt Paganinibuurt in Capelle aan den IJssel;
  • De woning beschikt onder andere over de volgende voorzieningen: Airconditioning, Mechanische ventilatie, Buitenzonwering, Dakterras, Douche, Toilet.

Beschrijving

Instap-klaar met energielabel A+ in het gewilde ’s-Gravenland!

Een moderne en zeer aantrekkelijke EENGEZINSWONING met achtertuin op het noordwesten en parkeergelegenheid op eigen terrein.

Comfort staat hier centraal: vloerverwarming op de begane grond, airconditioning, moderne eilandkeuken en badkamer, een dakterras, nieuwe cv ketel, zonnepanelen, HR++ glas, etc. Maak snel een afspraak om te komen kijken!

Zie onderstaande hoofdkenmerken met nadere omschrijving en de uitgebreide fotoreportage. Zelf sfeer proeven in de woning? Bel met Kok Makelaars voor een bezichtiging!

Hoofdkenmerken:

  • Tuingerichte woonkamer met airconditioning
  • Moderne en complete keuken met kookeiland
  • Moderne en ruime badkamer met inloopdouche
  • 4 goed formaat slaapkamers
  • Ruime achtertuin op het noordwesten
  • Dakterras op het zuidoosten
  • Parkeergelegenheid op eigen terrein (2 auto’s!)
  • Energielabel A+
  • Woonoppervlakte ca. 120 m²
  • Perceeloppervlakte ca. 165 m²
  • Eigen grond

Gelegen in de kindvriendelijke woonwijk ’s-Gravenland op korte afstand van veel voorzieningen, zoals overdekte winkelcentrum Puccinipassage, scholen, kinderdagopvang, gezondheidszorg, metrostation Capelsebrug en uitvalswegen.

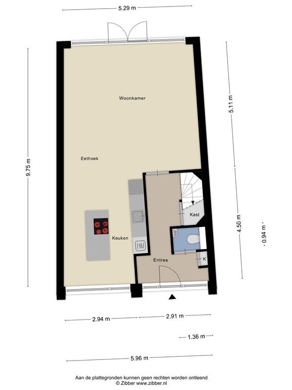
INDELING (voor de afmetingen, zie de plattegrondtekeningen)

Begane grond:
De begane grond is voorzien van een fraaie pvc vloerafwerking met vloerverwarming.

Entree/hal, voorzien van een droog/schoonloopmat met toegang tot de woonkamer, toilet, meterkast, kast onder de trap en de trapopgang naar de eerste verdieping.

Woonkamer, een opvallend lichte en tuingerichte woonkamer voorzien van airconditioning, met toegang tot de open keuken en achtertuin middels openslaande deuren.

Keuken (2020), een open en moderne keuken gelegen aan de voorzijde van de woning, voorzien van een recht keukenblok en een kookeiland.
Het kookeiland beschikt over een inductiekookplaat met Bora afzuiging en brede laden en kasten.
Het rechte keukenblok tegen de muur bevat een koel/vriescombinatie, vaatwasser, combioven, Quooker en ook hier brede laden en kasten.

Toilet, geheel betegeld en voorzien van een hangend closet en een fonteintje.

Eerste verdieping:
De eerste verdieping is voorzien van laminaat vloerafwerking.

Overloop, met toegang tot 3 slaapkamers, badkamer, toilet en trapopgang naar de tweede verdieping. Beide trappen zijn gestoffeerd.

Slaapkamer 1, een ruime kamer gelegen aan de voorzijde, voorzien van airconditioning.
Slaapkamer 2, een prima formaat kamer gelegen aan de achterzijde.
Slaapkamer 3, een extra kamer gelegen aan de achterzijde.

Badkamer, een moderne en ruime badkamer gelegen aan de voorzijde, voorzien van een inloopdouche met thermostaatkraan, 2 waskommen met mengkranen en een onderkast, brede spiegel met verlichting, badkamerradiator, mechanische ventilatie en een te openen raam.

Toilet, grotendeels betegeld, voorzien van een staand closet, een fonteintje en mechanische ventilatie.

Tweede verdieping:
De tweede verdieping is voorzien van pvc vloerafwerking.

Slaapkamer 4, een ruime kamer voorzien van airconditioning, toegang tot het dakterras en een afgesloten ruimte met de wasmachine- en drogeraansluiting, cv-ketel opstelling, mechanische ventilatie-unit en bergruimte.

Dakterras, een ruim terras gelegen op het zuidoosten, bevat de opstelplaats voor de buitenunits van de airconditioning.

Tuinen:
Achtertuin, gelegen op het noordwesten, voorzien van bestrating, een groene border, bevat een stenen berging, elektrische zonwering, buitenkraan en een achterom.

Voortuin, een ruime voortuin met bestrating, een buitenkraan en parkeergelegenheid voor 2 auto’s op eigen terrein.

Bijzonderheden:

  • Cv-ketel Intergas HRE (december 2025)
  • Airconditioning (2021/2022)
  • Vernieuwde elektra groepenkast
  • 16 stuks zonnepanelen (2022)
  • Houten kozijnen in 2025 geschilderd
  • HR++ glas (met uitzondering van badkamer en zolder dubbel glas)
  • Energielabel A+
  • Bouwjaar ca. 1997

Oplevering: in overleg met verkoper, indicatief: mei / juni 2026.

Bij het samenstellen van deze verkoopinformatie en (plattegrond)tekeningen zijn we nauwkeurig te werk gegaan, aan onjuistheden en/of onvolkomenheden kunt u echter geen rechten ontlenen. Daarnaast aanvaardt de makelaar of zijn opdrachtgever geen aansprakelijkheid voor de in de verkoopinformatie en (plattegrond)tekeningen verstrekte informatie.

Overdracht

Vraagprijs
€ 575.000 k.k.
Aangeboden sinds
22-12-2025
Status
Verkocht onder voorbehoud
Beschikbaar
In overleg
Bijzonderheden
Seniorenwoning
Onderhoudsstaat
Goed

Oppervlakte en inhoud

Woonoppervlakte
120 m²
Perceeloppervlakte
165 m²
Inhoud
426 m³

Bouw

Type woning
Huis
Soort woning
Tussenwoning (rijtjeshuis), Eengezinswoning
Soort bouw
Bestaande bouw
Bouwjaar
1997
Ligging
  • Aan een rustige weg
  • In een woonwijk
  • Nabij het openbaar vervoer
  • Nabij een school

Indeling

Aantal kamers
5
Aantal slaapkamers
4
Aantal badkamers
1
Aantal woonlagen
3
Voorzieningen
  • Airconditioning
  • Mechanische ventilatie
  • Buitenzonwering
  • Dakterras
  • Douche
  • Toilet

Buitenruimte

Balkon
Niet aanwezig
Tuin
Aanwezig (59 m², gelegen op het noordwesten)
Tuinbeschrijving
achtertuin
Achterom
Aanwezig
Dakterras
Aanwezig

Energie

Isolatie
Dubbele beglazing, Vloerisolatie, Volledig geïsoleerd, Dakisolatie, Muurisolatie
Verwarming
CV-ketel, Gedeeltelijke vloerverwarming
Warm water
CV-ketel
Cv-ketel
Intergas HRE (Gas, uit 2025, Eigendom)
Energielabel
A+

Bergruimte

Schuur/Berging
Aanwezig

Parkeergelegenheid

Aanwezig
Ja
Soort parkeergelegenheid
Openbaar

Garage

Aanwezig
Nee
Meld een probleem met deze woning