Contact met de makelaar

Deze woning is gevonden buiten ons eigen netwerk. Met de knop hieronder kom je direct bij de aanbieder terecht.

Verkocht onder voorbehoud

Verwersdijk 57 A

Bekijk kaart
2611 NE Delft (Centrum-West)
€ 275.000 k.k.
  • 40 m²
  • 2 kamers
  • 1882

Samenvatting

  • Deze woning wordt sinds 7 weken aangeboden door Wooncompany Den Haag;
  • De bovenwoning heeft een woonoppervlakte van 40 m² en beschikt over 2 kamers, waarvan 1 slaapkamer;
  • De woning is gebouwd In 1882 en ligt in de buurt Centrum-West in Delft;
  • De woning beschikt onder andere over de volgende voorzieningen: Dakterras, Douche, Toilet.

Beschrijving

Verwersdijk 57A – Delft
Stadsappartement aan een van de mooiste grachten van Delft
Aan de sfeervolle Verwersdijk, midden in het historische centrum, ligt dit lichte appartement op de tweede verdieping van een karakteristiek pand. De woning is compact maar efficiënt ingedeeld, met een prettige woonkamer, een goede slaapkamer aan de voorzijde en een praktische keuken.

De ligging is ideaal: rustig wonen in het hart van de binnenstad, met winkels, cafés, restaurants, supermarkten en openbaar vervoer op loopafstand. De TU Delft en het station zijn binnen enkele minuten met de fiets bereikbaar.

Indeling
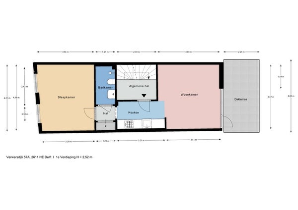
Via de gezamenlijke entree en trap bereik je het appartement op de eerste verdieping.
Je komt binnen in de keuken, voorzien van inbouwapparatuur en voldoende bergruimte. Aan de achterzijde ligt de lichte woonkamer met openslaande deuren naar het dakterras — een fijne plek om de deuren open te zetten en buiten bij de woning te betrekken.
Aan de voorzijde bevindt zich de slaapkamer, rustig gelegen en van goed formaat. In de hal ligt de badkamer met douche, wastafel en toilet.

Bijzonderheden
-Gelegen op eigen grond
-Gebruiksoppervlakte wonen ca. 40,2 m²
-Actieve VvE, bijdrage € 67,86 per maand
-Voorschot G/W/L € 123,00 per maand, afrekening via de VvE
-Projectnotaris: Rosenberg Polak
-Energielabel C
-Ouderdomsclausule, materialenclausule en niet-zelfbewoningsclausule van toepassing

English

Verwersdijk 57A – Delft
City apartment along one of Delft’s most beautiful canals

Situated on the atmospheric Verwersdijk, right in the historic city centre, this bright apartment occupies the second floor of a characteristic building. The property is compact yet efficiently laid out, featuring a comfortable living room, a well-sized bedroom at the front, and a practical kitchen.

The location is excellent: quiet living in the heart of the city, with shops, cafés, restaurants, supermarkets and public transport all within walking distance. TU Delft and the railway station are just a short bike ride away.

Layout
The apartment is reached via the shared entrance and staircase to the first floor.
You enter through the kitchen, equipped with built-in appliances and sufficient storage space. At the rear is the bright living room with French doors opening onto the roof terrace — an ideal spot to open the doors and extend the living space to the outdoors.
At the front is the bedroom, quietly positioned and of good size. The bathroom, fitted with a shower, washbasin and toilet, is located off the hallway.

Details
-Freehold property
-Living area approx. 40.2 m²
-Active homeowners' association (VvE), monthly contribution € 67.86
-Advance payment for G/W/L € 123.00 per month, settled via the VvE
-Project notary: Rosenberg Polak
-Energy label C
-Age clause, materials clause and non-occupancy clause apply

Reageer op tijd op nieuw woningaanbod

Meer dan de helft van de reacties komt binnen 48 uur. Ontvang direct notificaties bij nieuw aanbod en reageer sneller met Pararius+.

Probeer Pararius+ 14 dagen € 0,01

Overdracht

Vraagprijs
€ 275.000 k.k.
Aangeboden sinds
18-11-2025
Status
Verkocht onder voorbehoud
Beschikbaar
In overleg
Onderhoudsstaat
Goed

Oppervlakte en inhoud

Woonoppervlakte
40 m²
Inhoud
134 m³

VvE informatie

Inschrijving KvK
Ja
Jaarlijkse vergadering
Ja
Periodieke bijdrage
Ja (€ 68 per maand)
Reservefonds aanwezig
Ja
Opstalverzekering
Ja

Bouw

Type woning
Appartement
Soort woning
Bovenwoning, Appartement
Soort bouw
Bestaande bouw
Bouwjaar
1882

Indeling

Aantal kamers
2
Aantal slaapkamers
1
Aantal badkamers
1
Aantal woonlagen
1
Voorzieningen
  • Dakterras
  • Douche
  • Toilet

Buitenruimte

Balkon
Niet aanwezig
Dakterras
Aanwezig

Energie

Isolatie
Dubbele beglazing
Verwarming
CV-ketel
Warm water
CV-ketel
Energielabel
C

Parkeergelegenheid

Aanwezig
Ja
Soort parkeergelegenheid
Openbaar
Meld een probleem met deze woning