Contact met de makelaar

Deze woning is gevonden buiten ons eigen netwerk. Met de knop hieronder kom je direct bij de aanbieder terecht.

Pluvierstraat

Bekijk kaart
2583 KJ Den Haag (Duindorp)
€ 375.000 k.k.
  • 87 m²
  • 3 kamers
  • 1929

Samenvatting

  • Deze woning wordt sinds 6 weken aangeboden door DOEN NVM Makelaars - Voorburg;
  • De galerijflat heeft een woonoppervlakte van 87 m² en beschikt over 3 kamers, waarvan 2 slaapkamers;
  • De woning is gebouwd In 1929 en ligt in de buurt Duindorp in Den Haag.

Beschrijving

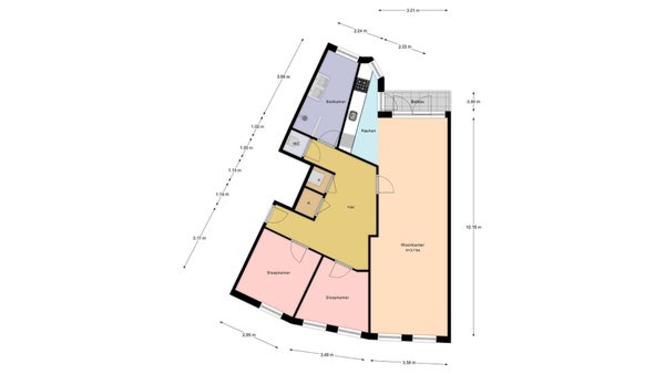
Ontdek dit sfeervolle en lichte 3-kamer appartement op een toplocatie vlakbij het strand. Met een woonoppervlakte van ca. 87 m² en gelegen op de 1e etage van de Pluvierstraat, biedt dit appartement een geweldige combinatie van comfort en nabijheid van de duinen en de zee. In de kindvriendelijke wijk Duindorp zijn supermarkten, scholen, en sportfaciliteiten binnen handbereik. Via een open portiek betreed je de hal van het appartement. De ruime woon-eetkamer heeft toegang tot een balkon op het noordoosten, en de moderne keuken is uitgerust met diverse apparatuur. Het appartement heeft twee slaapkamers en een badkamer met een inloopdouche en vloerverwarming. Het is uitstekend onderhouden en beschikt over dubbele beglazing voor extra comfort.

Overdracht

Vraagprijs
€ 375.000 k.k.
Aangeboden sinds
14-11-2025
Status
Beschikbaar
Beschikbaar
In overleg

Oppervlakte en inhoud

Woonoppervlakte
87 m²

Bouw

Type woning
Appartement
Soort woning
Galerijflat
Soort bouw
Bestaande bouw
Bouwjaar
1929

Indeling

Aantal kamers
3
Aantal slaapkamers
2
Aantal badkamers
1

Buitenruimte

Dakterras
Niet aanwezig

Energie

Energielabel
D
Meld een probleem met deze woning