Contact met de makelaar

Deze woning is gevonden buiten ons eigen netwerk. Met de knop hieronder kom je direct bij de aanbieder terecht.

Nieuw

2e Van Blankenburgstraat 104

Bekijk kaart
2517 HE Den Haag (Sweelinckplein en omgeving)
€ 875.000 k.k.
  • 158 m²
  • 7 kamers
  • 1900

Samenvatting

  • Deze woning wordt sinds 16 oktober 2025 aangeboden door Arnold Taal Makelaardij;
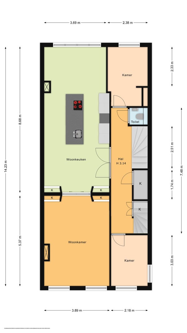
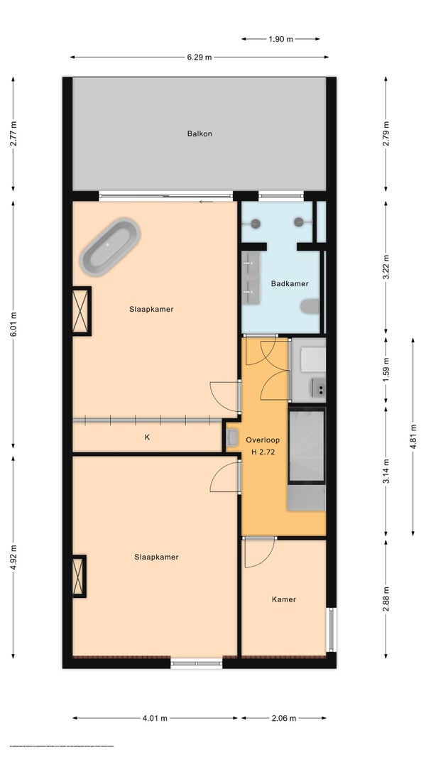
  • De bovenwoning heeft een woonoppervlakte van 158 m² en beschikt over 7 kamers, waarvan 5 slaapkamers;
  • De woning is gebouwd In 1900 en ligt in de buurt Sweelinckplein en omgeving in Den Haag;
  • De woning beschikt onder andere over de volgende voorzieningen: Kabel TV, Mechanische ventilatie, Dakterras, Douche, Schuifdeuren, Toilet, Wasruimte.

Beschrijving

Overdracht

Vraagprijs
€ 875.000 k.k.
Aangeboden sinds
16-10-2025
Status
Beschikbaar
Beschikbaar
In overleg
Bijzonderheden
Beschermd stads- of dorpsgezicht
Onderhoudsstaat
Goed

Oppervlakte en inhoud

Woonoppervlakte
158 m²
Inhoud
581 m³

VvE informatie

Inschrijving KvK
Ja
Jaarlijkse vergadering
Ja
Periodieke bijdrage
Ja (€ 141 per maand)
Reservefonds aanwezig
Ja
Onderhoudsplan
Nee
Opstalverzekering
Ja

Bouw

Type woning
Appartement
Soort woning
Bovenwoning, Dubbel bovenhuis
Soort bouw
Bestaande bouw
Bouwjaar
1900
Ligging
Aan een rustige weg

Indeling

Aantal kamers
7
Aantal slaapkamers
5
Aantal badkamers
1
Aantal woonlagen
2
Voorzieningen
  • Kabel TV
  • Mechanische ventilatie
  • Dakterras
  • Douche
  • Schuifdeuren
  • Toilet
  • Wasruimte

Buitenruimte

Balkon
Aanwezig
Tuin
Niet aanwezig
Dakterras
Aanwezig

Energie

Isolatie
Dubbele beglazing, Vloerisolatie
Verwarming
CV-ketel
Warm water
CV-ketel
Cv-ketel
Remeha (Gas, uit 2024, Eigendom)
Energielabel
A

Parkeergelegenheid

Aanwezig
Ja
Soort parkeergelegenheid
Openbaar

Garage

Aanwezig
Nee
Meld een probleem met deze woning
Contact met de makelaar Bel