- 74 m²
- 4 kamers
- 1930
Samenvatting
- Deze woning wordt sinds 10 oktober 2025 aangeboden door Makelaars Korporaal & Bertels;
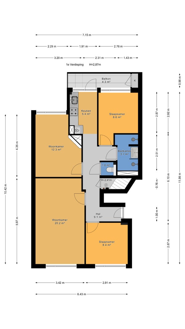
- De portiekwoning heeft een woonoppervlakte van 74 m² en beschikt over 4 kamers, waarvan 3 slaapkamers;
- De woning is gebouwd In 1930 en ligt in de buurt Laakkwartier-West in Den Haag.
Beschrijving
Overdracht
- Vraagprijs
- € 249.500 k.k.
- Aangeboden sinds
- 10-10-2025
- Status
- Beschikbaar
- Beschikbaar
- In overleg
- Bijzonderheden
- Beschermd stads- of dorpsgezicht
- Onderhoudsstaat
- Goed
Oppervlakte en inhoud
- Woonoppervlakte
- 74 m²
- Inhoud
- 263 m³
VvE informatie
- Inschrijving KvK
- Ja
- Jaarlijkse vergadering
- Nee
- Periodieke bijdrage
- Ja (€ 178 per maand)
- Reservefonds aanwezig
- Ja
- Onderhoudsplan
- Nee
- Opstalverzekering
- Ja
Bouw
- Type woning
- Appartement
- Soort woning
- Portiekwoning, Appartement
- Soort bouw
- Bestaande bouw
- Bouwjaar
- 1930
- Ligging
- In een woonwijk
Indeling
- Aantal kamers
- 4
- Aantal slaapkamers
- 3
- Aantal badkamers
- 1
- Aantal woonlagen
- 1
- Voorzieningen
-
- Douche
- Toilet
Buitenruimte
- Balkon
- Aanwezig
- Tuin
- Niet aanwezig
- Dakterras
- Niet aanwezig
Energie
- Isolatie
- Dubbele beglazing, Muurisolatie
- Verwarming
- CV-ketel
- Warm water
- CV-ketel
- Cv-ketel
- Remeha Avanta (Gas, uit 2017, Eigendom)
- Energielabel
- A
Parkeergelegenheid
- Aanwezig
- Ja
- Soort parkeergelegenheid
- Betaald
Garage
- Aanwezig
- Nee