Contact met de makelaar

Deze woning is gevonden buiten ons eigen netwerk. Met de knop hieronder kom je direct bij de aanbieder terecht.

Nieuw

Hoenderloostraat 71

Bekijk kaart
2573 RK Den Haag (Oostbroek-Noord)
€ 325.000 k.k.
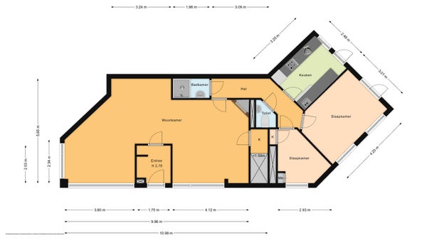
  • 86 m²
  • 3 kamers
  • 1929

Samenvatting

  • Deze woning wordt sinds 29 oktober 2025 aangeboden door Arnold Taal Makelaardij;
  • De benedenwoning heeft een woonoppervlakte van 86 m² en beschikt over 3 kamers, waarvan 2 slaapkamers;
  • De woning is gebouwd In 1929 en ligt in de buurt Oostbroek-Noord in Den Haag;
  • De woning beschikt onder andere over de volgende voorzieningen: Kabel TV, Douche, Toilet.

Beschrijving

Overdracht

Vraagprijs
€ 325.000 k.k.
Aangeboden sinds
29-10-2025
Status
Beschikbaar
Beschikbaar
Per direct
Onderhoudsstaat
Redelijk

Oppervlakte en inhoud

Woonoppervlakte
86 m²
Inhoud
293 m³

VvE informatie

Inschrijving KvK
Ja
Jaarlijkse vergadering
Ja
Periodieke bijdrage
Ja (€ 168 per maand)
Reservefonds aanwezig
Ja
Onderhoudsplan
Nee
Opstalverzekering
Ja

Bouw

Type woning
Appartement
Soort woning
Benedenwoning, Appartement
Soort bouw
Bestaande bouw
Bouwjaar
1929
Ligging
  • Aan een rustige weg
  • In een woonwijk

Indeling

Aantal kamers
3
Aantal slaapkamers
2
Aantal badkamers
1
Aantal woonlagen
1
Voorzieningen
  • Kabel TV
  • Douche
  • Toilet

Buitenruimte

Balkon
Niet aanwezig
Tuin
Aanwezig (32 m², gelegen op het noordoosten)
Tuinbeschrijving
achtertuin
Dakterras
Niet aanwezig

Energie

Isolatie
Gedeeltelijk dubbele beglazing
Verwarming
CV-ketel
Warm water
CV-ketel
Cv-ketel
Vaillant (Gas, Eigendom)
Energielabel
G

Bergruimte

Schuur/Berging
Aanwezig
Omschrijving
Aangebouwd steen

Parkeergelegenheid

Aanwezig
Ja
Soort parkeergelegenheid
Openbaar

Garage

Aanwezig
Nee
Meld een probleem met deze woning
Contact met de makelaar Bel