Contact met de makelaar

Deze woning is gevonden buiten ons eigen netwerk. Met de knop hieronder kom je direct bij de aanbieder terecht.

Nieuw

Valkenboskade 613

Bekijk kaart
2563 JG Den Haag (Bomenbuurt)
€ 815.000 k.k.
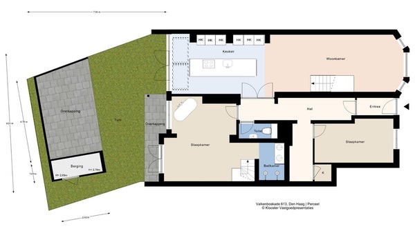
  • 192 m²
  • 6 kamers
  • 1917

Samenvatting

  • Deze woning wordt sinds 30 oktober 2025 aangeboden door RE/MAX City Makelaardij;
  • De benedenwoning heeft een woonoppervlakte van 192 m² en beschikt over 6 kamers, waarvan 4 slaapkamers;
  • De woning is gebouwd In 1917 en ligt in de buurt Bomenbuurt in Den Haag;
  • De woning beschikt onder andere over de volgende voorzieningen: Kabel TV, Glasvezelaansluiting, Internetaansluiting, Mechanische ventilatie, Schuifdeuren, Toilet, Wasruimte.

Beschrijving

Meer woninginformatie bekijken?

Log in of registreer gratis.

Overdracht

Vraagprijs
€ 815.000 k.k.
Aangeboden sinds
30-10-2025
Status
Beschikbaar
Beschikbaar
In overleg
Onderhoudsstaat
Zeer goed

Oppervlakte en inhoud

Woonoppervlakte
192 m²
Inhoud
585 m³

VvE informatie

Inschrijving KvK
Ja
Jaarlijkse vergadering
Ja
Periodieke bijdrage
Ja (€ 135 per maand)
Reservefonds aanwezig
Ja
Opstalverzekering
Ja

Bouw

Type woning
Appartement
Soort woning
Benedenwoning, Appartement
Soort bouw
Bestaande bouw
Bouwjaar
1917
Ligging
  • Aan een rustige weg
  • In een woonwijk
  • Nabij het openbaar vervoer
  • Nabij een school

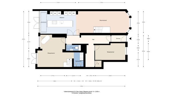
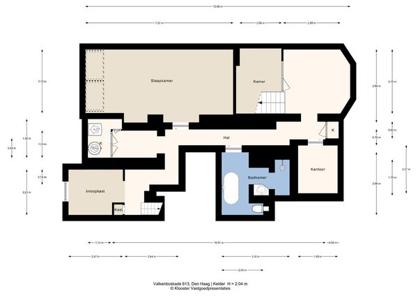
Indeling

Aantal kamers
6
Aantal slaapkamers
4
Aantal badkamers
2
Aantal woonlagen
2
Voorzieningen
  • Kabel TV
  • Glasvezelaansluiting
  • Internetaansluiting
  • Mechanische ventilatie
  • Schuifdeuren
  • Toilet
  • Wasruimte

Buitenruimte

Balkon
Niet aanwezig
Tuin
Aanwezig (63 m², gelegen op het noordoosten)
Tuinbeschrijving
achtertuin
Dakterras
Niet aanwezig

Energie

Isolatie
Dubbele beglazing, Vloerisolatie, Volledig geïsoleerd, Muurisolatie
Verwarming
Volledige vloerverwarming, Warmtepomp
Energielabel
A+

Bergruimte

Schuur/Berging
Aanwezig

Parkeergelegenheid

Aanwezig
Ja
Soort parkeergelegenheid
Betaald
Meld een probleem met deze woning
Contact met de makelaar Bel