Contact met de makelaar

Deze woning is gevonden buiten ons eigen netwerk. Met de knop hieronder kom je direct bij de aanbieder terecht.

Nieuw

Altingstraat 157

Bekijk kaart
2593 SV Den Haag (Bezuidenhout-Oost)
€ 365.000 k.k.
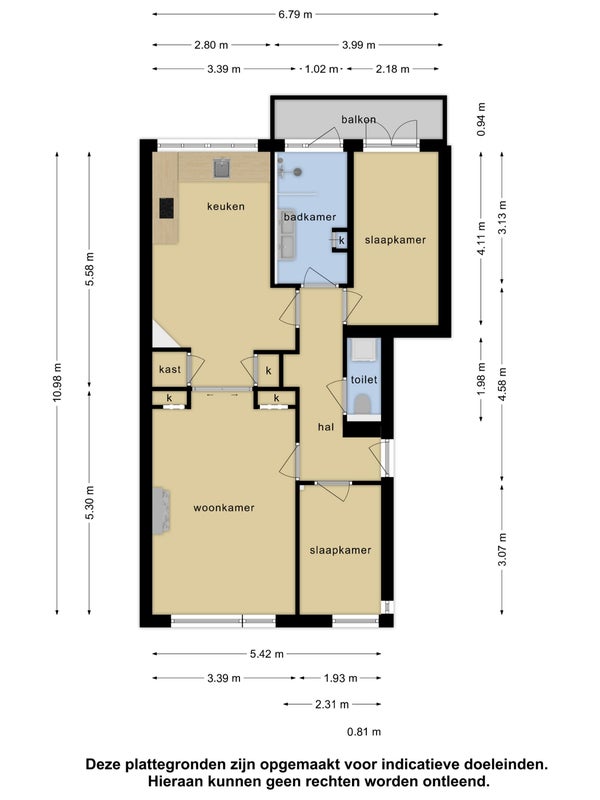
  • 65 m²
  • 4 kamers
  • 1929

Samenvatting

  • Deze woning wordt sinds 17 oktober 2025 aangeboden door Langezaal makelaars;
  • De portiekwoning heeft een woonoppervlakte van 65 m² en beschikt over 4 kamers, waarvan 2 slaapkamers;
  • De woning is gebouwd In 1929 en ligt in de buurt Bezuidenhout-Oost in Den Haag;
  • De woning beschikt onder andere over de volgende voorzieningen: Kabel TV, Douche, Bergruimte, Toilet.

Beschrijving

Meer woninginformatie bekijken?

Log in of registreer gratis.

Overdracht

Vraagprijs
€ 365.000 k.k.
Aangeboden sinds
17-10-2025
Status
Beschikbaar
Beschikbaar
In overleg
Onderhoudsstaat
Goed

Oppervlakte en inhoud

Woonoppervlakte
65 m²
Inhoud
205 m³

VvE informatie

Inschrijving KvK
Ja
Jaarlijkse vergadering
Ja
Periodieke bijdrage
Ja (€ 120 per maand)
Reservefonds aanwezig
Ja
Onderhoudsplan
Ja
Opstalverzekering
Ja

Bouw

Type woning
Appartement
Soort woning
Portiekwoning, Appartement
Soort bouw
Bestaande bouw
Bouwjaar
1929
Ligging
  • Aan een rustige weg
  • In een woonwijk

Indeling

Aantal kamers
4
Aantal slaapkamers
2
Aantal badkamers
1
Aantal woonlagen
1
Voorzieningen
  • Kabel TV
  • Douche
  • Bergruimte
  • Toilet

Buitenruimte

Balkon
Aanwezig
Tuin
Niet aanwezig
Dakterras
Niet aanwezig

Energie

Isolatie
Dubbele beglazing
Verwarming
CV-ketel
Warm water
CV-ketel
Cv-ketel
Remeha (Gas, uit 2012, Eigendom)
Energielabel
D

Bergruimte

Schuur/Berging
Aanwezig
Omschrijving
Box

Parkeergelegenheid

Aanwezig
Ja
Soort parkeergelegenheid
Openbaar

Garage

Aanwezig
Nee
Meld een probleem met deze woning
Contact met de makelaar Bel