Contact met de makelaar

Deze woning is gevonden buiten ons eigen netwerk. Met de knop hieronder kom je direct bij de aanbieder terecht.

Nieuw

Jonckbloetplein 20

Bekijk kaart
2523 AR Den Haag (Laakkwartier-Oost)
€ 225.000 k.k.
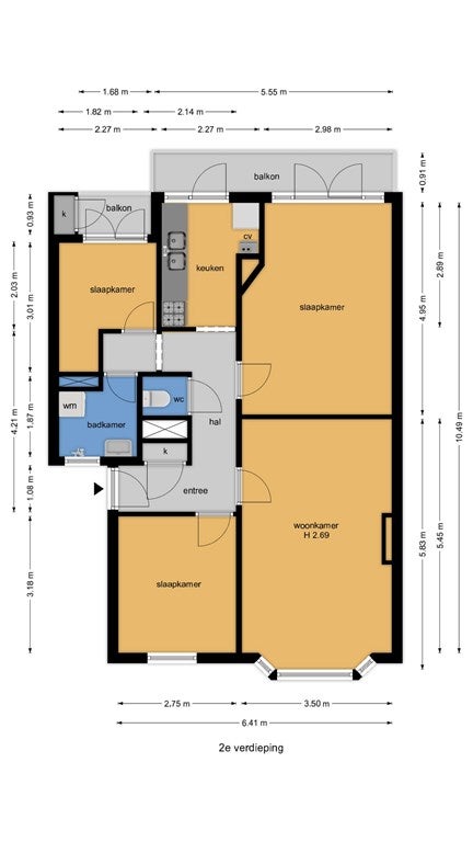
  • 73 m²
  • 4 kamers
  • 1932

Samenvatting

  • Deze woning wordt sinds 17 oktober 2025 aangeboden door De Huizenbemiddelaar Haaglanden;
  • De portiekflat heeft een woonoppervlakte van 73 m² en beschikt over 4 kamers, waarvan 3 slaapkamers;
  • De woning is gebouwd In 1932 en ligt in de buurt Laakkwartier-Oost in Den Haag.

Beschrijving

Overdracht

Vraagprijs
€ 225.000 k.k.
Aangeboden sinds
17-10-2025
Status
Beschikbaar
Beschikbaar
In overleg
Onderhoudsstaat
Goed

Oppervlakte en inhoud

Woonoppervlakte
73 m²
Inhoud
243 m³

VvE informatie

Inschrijving KvK
Ja
Jaarlijkse vergadering
Ja
Periodieke bijdrage
Ja (€ 123 per maand)
Reservefonds aanwezig
Ja
Onderhoudsplan
Ja
Opstalverzekering
Ja

Bouw

Type woning
Appartement
Soort woning
Portiekflat, Appartement
Soort bouw
Bestaande bouw
Bouwjaar
1932
Ligging
Nabij het openbaar vervoer

Indeling

Aantal kamers
4
Aantal slaapkamers
3
Aantal badkamers
1
Aantal woonlagen
1
Voorzieningen
  • Douche
  • Toilet

Buitenruimte

Balkon
Niet aanwezig
Dakterras
Niet aanwezig

Energie

Isolatie
Dubbele beglazing
Verwarming
CV-ketel
Warm water
CV-ketel
Cv-ketel
Remeha Tzerra CR (Gas, uit 2013, Eigendom)
Energielabel
C

Parkeergelegenheid

Aanwezig
Ja
Soort parkeergelegenheid
Openbaar
Meld een probleem met deze woning
Contact met de makelaar Bel