Contact met de makelaar

Deze woning is gevonden buiten ons eigen netwerk. Met de knop hieronder kom je direct bij de aanbieder terecht.

Nieuw

Laan van Meerdervoort 314 A

Bekijk kaart
2563 AL Den Haag (Koningsplein en omgeving)
€ 775.000 k.k.
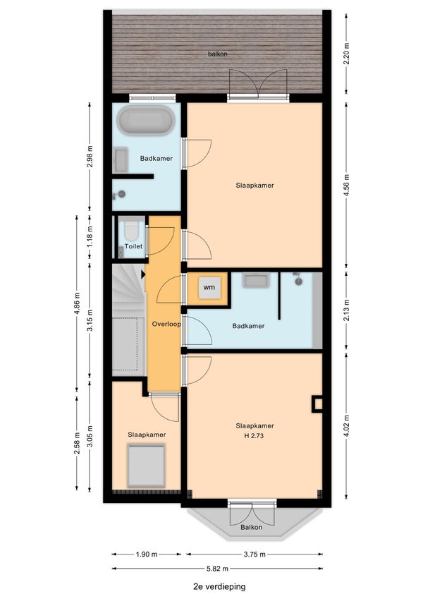
  • 144 m²
  • 6 kamers
  • 1934

Samenvatting

  • Deze woning wordt sinds 23 oktober 2025 aangeboden door Arnold Taal Makelaardij;
  • De bovenwoning heeft een woonoppervlakte van 144 m² en beschikt over 6 kamers, waarvan 4 slaapkamers;
  • De woning is gebouwd In 1934 en ligt in de buurt Koningsplein en omgeving in Den Haag;
  • De woning beschikt onder andere over de volgende voorzieningen: Airconditioning, Bad, Kabel TV, Dakkapel, Mechanische ventilatie, Buitenzonwering, Dakterras, Douche, Dakraam, Toilet, Wasruimte.

Beschrijving

Overdracht

Vraagprijs
€ 775.000 k.k.
Aangeboden sinds
23-10-2025
Status
Beschikbaar
Beschikbaar
In overleg
Bijzonderheden
Beschermd stads- of dorpsgezicht
Onderhoudsstaat
Zeer goed

Oppervlakte en inhoud

Woonoppervlakte
144 m²
Inhoud
524 m³

VvE informatie

Inschrijving KvK
Ja
Jaarlijkse vergadering
Ja
Periodieke bijdrage
Ja (€ 112 per maand)
Reservefonds aanwezig
Ja
Onderhoudsplan
Nee
Opstalverzekering
Ja

Bouw

Type woning
Appartement
Soort woning
Bovenwoning, Appartement
Soort bouw
Bestaande bouw
Bouwjaar
1934
Ligging
Vrij uitzicht

Indeling

Aantal kamers
6
Aantal slaapkamers
4
Aantal badkamers
2
Aantal woonlagen
2
Voorzieningen
  • Airconditioning
  • Bad
  • Kabel TV
  • Dakkapel
  • Mechanische ventilatie
  • Buitenzonwering
  • Dakterras
  • Douche
  • Dakraam
  • Toilet
  • Wasruimte

Buitenruimte

Balkon
Niet aanwezig
Tuin
Aanwezig (21 m², gelegen op het zuidoosten)
Tuinbeschrijving
zonneterras
Dakterras
Aanwezig

Energie

Verwarming
CV-ketel
Warm water
CV-ketel
Cv-ketel
Remeha (Gas, uit 2019, Eigendom)
Energielabel
C

Parkeergelegenheid

Aanwezig
Ja
Soort parkeergelegenheid
Openbaar

Garage

Aanwezig
Nee
Meld een probleem met deze woning
Contact met de makelaar Bel