Contact met de makelaar

Deze woning is gevonden buiten ons eigen netwerk. Met de knop hieronder kom je direct bij de aanbieder terecht.

Nieuw

Johannes Camphuijsstraat 177

Bekijk kaart
2593 CL Den Haag (Bezuidenhout-Oost)
€ 450.000 k.k.
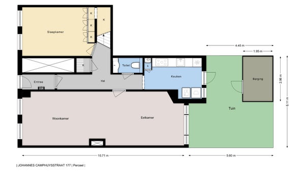
  • 98 m²
  • 3 kamers
  • 1911

Samenvatting

  • Deze woning wordt sinds 24 oktober 2025 aangeboden door Makelaarskantoor Kimmel & Co b.v.;
  • De benedenwoning heeft een woonoppervlakte van 98 m² en beschikt over 3 kamers, waarvan 2 slaapkamers;
  • De woning is gebouwd In 1911 en ligt in de buurt Bezuidenhout-Oost in Den Haag.

Beschrijving

Overdracht

Vraagprijs
€ 450.000 k.k.
Aangeboden sinds
24-10-2025
Status
Beschikbaar
Beschikbaar
In overleg
Onderhoudsstaat
Goed

Oppervlakte en inhoud

Woonoppervlakte
98 m²
Inhoud
405 m³

VvE informatie

Inschrijving KvK
Nee
Jaarlijkse vergadering
Nee
Periodieke bijdrage
Ja (€ 195 per maand)
Reservefonds aanwezig
Ja
Onderhoudsplan
Nee
Opstalverzekering
Ja

Bouw

Type woning
Appartement
Soort woning
Benedenwoning, Appartement
Soort bouw
Bestaande bouw
Bouwjaar
1911
Ligging
In een woonwijk

Indeling

Aantal kamers
3
Aantal slaapkamers
2
Aantal badkamers
1
Aantal woonlagen
2
Voorzieningen
  • Douche
  • Toilet

Buitenruimte

Balkon
Niet aanwezig
Tuin
Aanwezig
Tuinbeschrijving
achtertuin
Dakterras
Niet aanwezig

Energie

Isolatie
Dubbele beglazing
Verwarming
CV-ketel
Warm water
CV-ketel
Cv-ketel
Intergas Combi Kompakt HRE 36/30 (Gas, uit 2012, Eigendom)
Energielabel
C

Bergruimte

Schuur/Berging
Aanwezig
Omschrijving
Vrijstaand hout

Parkeergelegenheid

Aanwezig
Ja
Soort parkeergelegenheid
Openbaar

Garage

Aanwezig
Nee
Meld een probleem met deze woning
Contact met de makelaar Bel