Contact met de makelaar

Deze woning is gevonden buiten ons eigen netwerk. Met de knop hieronder kom je direct bij de aanbieder terecht.

Nieuw

Arabislaan

Bekijk kaart
2555 DK Den Haag (Bohemen en Meer en Bos)
€ 525.000 k.k.
  • 120 m²
  • 5 kamers
  • 1952

Samenvatting

  • Deze woning wordt sinds 16 januari 2026 aangeboden door Duynhage Makelaardij;
  • De galerijflat heeft een woonoppervlakte van 120 m² en beschikt over 5 kamers, waarvan 3 slaapkamers;
  • De woning is gebouwd In 1952 en ligt in de buurt Bohemen en Meer en Bos in Den Haag.

Beschrijving

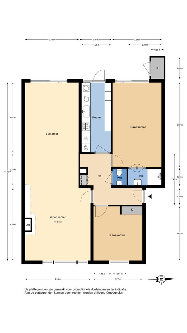
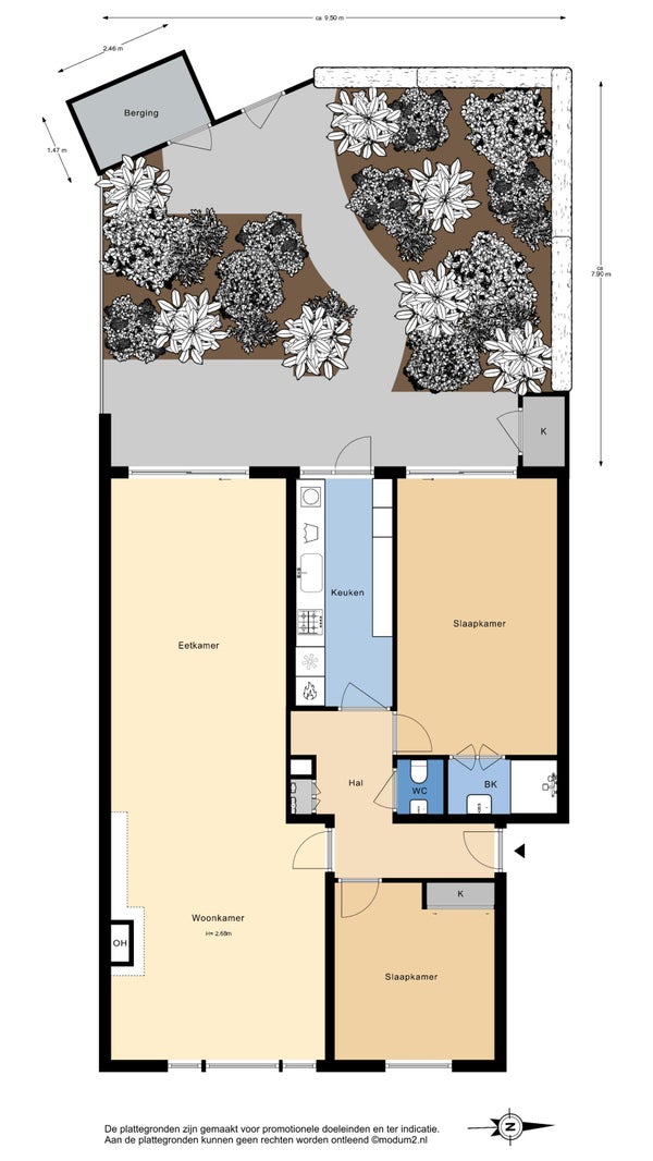
Deze lichte en ruime parterre woning beslaat 102 m² en biedt 2 grote slaapkamers. Bovendien beschikt het over een gerenoveerde zolderkamer van 39 m², ideaal als atelier of kantoor. De L-vormige woonkamer van ca. 11.93x3.58 leidt naar een zonnige achtertuin van ca. 9.50x7.90, inclusief bergingen en een eigen achterom. De keuken is voorzien van moderne apparatuur en veel kastruimte. De grote achterslaapkamer (ca. 5.67x3.28) heeft toegang tot een nette badkamer. De tweede slaapkamer (ca. 3.61x3.27) bevindt zich aan de voorkant. De woning is gunstig gelegen nabij winkelvoorzieningen, stranden en natuurgebieden. De zolderkamer is uitgerust met een wastafelmeubel en heeft veel bergruimte. Oplevering is in overleg.

Overdracht

Vraagprijs
€ 525.000 k.k.
Aangeboden sinds
16-01-2026
Status
Beschikbaar
Beschikbaar
Per direct

Oppervlakte en inhoud

Woonoppervlakte
120 m²

Bouw

Type woning
Appartement
Soort woning
Galerijflat
Soort bouw
Bestaande bouw
Bouwjaar
1952

Indeling

Aantal kamers
5
Aantal slaapkamers
3
Aantal badkamers
1

Buitenruimte

Dakterras
Niet aanwezig

Energie

Energielabel
C
Meld een probleem met deze woning