Contact met de makelaar

Deze woning is gevonden buiten ons eigen netwerk. Met de knop hieronder kom je direct bij de aanbieder terecht.

Nieuw

Oude Molstraat 26

Bekijk kaart
2513 BB Den Haag (Kortenbos)
€ 645.000 k.k.
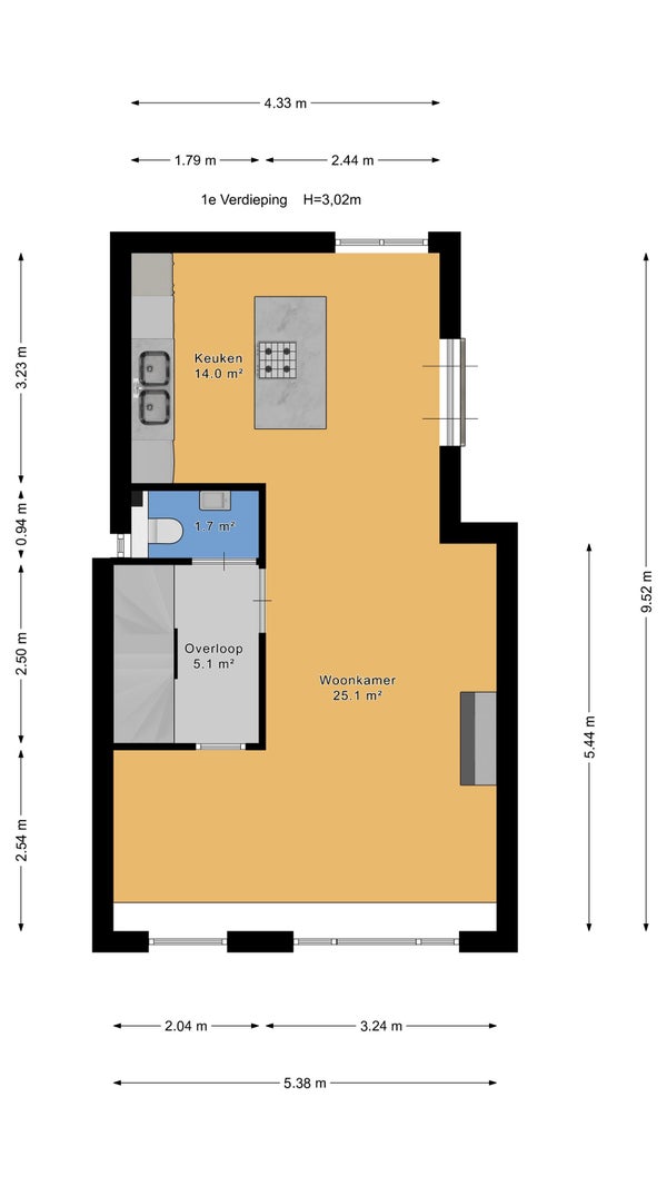
  • 116 m²
  • 5 kamers
  • 1901

Samenvatting

  • Deze woning wordt sinds 26 oktober 2025 aangeboden door Residence Makelaars;
  • De bovenwoning heeft een woonoppervlakte van 116 m² en beschikt over 5 kamers, waarvan 4 slaapkamers;
  • De woning is gebouwd In 1901 en ligt in de buurt Kortenbos in Den Haag;
  • De woning beschikt onder andere over de volgende voorzieningen: Bad, Dakterras, Douche, Toilet, Wasruimte.

Beschrijving

Meer woninginformatie bekijken?

Log in of registreer gratis.

Overdracht

Vraagprijs
€ 645.000 k.k.
Aangeboden sinds
26-10-2025
Status
Beschikbaar
Beschikbaar
Per direct
Bijzonderheden
Beschermd stads- of dorpsgezicht
Onderhoudsstaat
Zeer goed

Oppervlakte en inhoud

Woonoppervlakte
116 m²
Inhoud
440 m³

VvE informatie

Inschrijving KvK
Ja
Jaarlijkse vergadering
Ja
Periodieke bijdrage
Ja (€ 150 per maand)
Reservefonds aanwezig
Ja
Onderhoudsplan
Ja
Opstalverzekering
Ja

Bouw

Type woning
Appartement
Soort woning
Bovenwoning, Dubbel bovenhuis
Soort bouw
Bestaande bouw
Bouwjaar
1901
Ligging
In het centrum

Indeling

Aantal kamers
5
Aantal slaapkamers
4
Aantal badkamers
2
Aantal woonlagen
3
Voorzieningen
  • Bad
  • Dakterras
  • Douche
  • Toilet
  • Wasruimte

Buitenruimte

Balkon
Niet aanwezig
Tuin
Niet aanwezig
Dakterras
Aanwezig

Energie

Isolatie
Dubbele beglazing
Verwarming
CV-ketel
Warm water
CV-ketel
Cv-ketel
hr ketel (Gas, Eigendom)
Energielabel
D

Parkeergelegenheid

Aanwezig
Ja
Soort parkeergelegenheid
Openbaar

Garage

Aanwezig
Nee
Meld een probleem met deze woning
Contact met de makelaar Bel