Contact met de makelaar

Deze woning is gevonden buiten ons eigen netwerk. Met de knop hieronder kom je direct bij de aanbieder terecht.

Verkocht onder voorbehoud

Pollux

Bekijk kaart
2221 MG Katwijk (Rijnsoever-Midden)
€ 279.000 k.k.
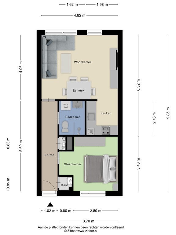
  • 47 m²
  • 2 kamers
  • 1983

Samenvatting

  • Deze woning wordt sinds 6 weken aangeboden door Tameling Vastgoed;
  • De galerijflat heeft een woonoppervlakte van 47 m² en beschikt over 2 kamers, waarvan 1 slaapkamer;
  • De woning is gebouwd In 1983 en ligt in de buurt Rijnsoever-Midden in Katwijk;
  • De woning beschikt onder andere over de volgende voorzieningen: Kabel TV, Glasvezelaansluiting, Mechanische ventilatie, Douche, Toilet.

Beschrijving

Overdracht

Vraagprijs
€ 279.000 k.k.
Aangeboden sinds
10-10-2025
Status
Verkocht onder voorbehoud
Beschikbaar
Per direct
Onderhoudsstaat
Goed

Oppervlakte en inhoud

Woonoppervlakte
47 m²
Inhoud
155 m³

VvE informatie

Inschrijving KvK
Ja
Jaarlijkse vergadering
Ja
Periodieke bijdrage
Ja (€ 104 per maand)
Reservefonds aanwezig
Ja
Onderhoudsplan
Ja
Opstalverzekering
Ja

Bouw

Type woning
Appartement
Soort woning
Galerijflat, Appartement
Soort bouw
Bestaande bouw
Bouwjaar
1983
Ligging
  • Aan een rustige weg
  • In een woonwijk
  • Nabij het openbaar vervoer

Indeling

Aantal kamers
2
Aantal slaapkamers
1
Aantal badkamers
1
Aantal woonlagen
1
Voorzieningen
  • Kabel TV
  • Glasvezelaansluiting
  • Mechanische ventilatie
  • Douche
  • Toilet

Buitenruimte

Balkon
Niet aanwezig
Dakterras
Niet aanwezig

Energie

Verwarming
CV-ketel
Warm water
CV-ketel
Cv-ketel
Intergas HR (Gas, uit 2008, Eigendom)
Energielabel
C

Bergruimte

Schuur/Berging
Aanwezig

Parkeergelegenheid

Aanwezig
Ja
Soort parkeergelegenheid
Openbaar
Meld een probleem met deze woning
Contact met de makelaar Bel