Contact met de makelaar

Deze woning is gevonden buiten ons eigen netwerk. Met de knop hieronder kom je direct bij de aanbieder terecht.

Nieuw

Brahmslaan

Bekijk kaart
2324 AL Leiden (Fortuinwijk-Zuid)
€ 325.000 k.k.
  • 73 m²
  • 4 kamers
  • 1967

Samenvatting

  • Deze woning wordt sinds 27 januari 2026 aangeboden door DOEN NVM Makelaars - Voorburg;
  • De galerijflat heeft een woonoppervlakte van 73 m² en beschikt over 4 kamers, waarvan 3 slaapkamers;
  • De woning is gebouwd In 1967 en ligt in de buurt Fortuinwijk-Zuid in Leiden.

Beschrijving

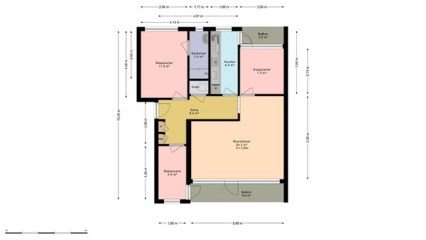
Dit royale 4-kamerappartement op de tweede etage van een verzorgd complex biedt een fraai uitzicht over de groene woonomgeving van Leiden Zuidwest. Bij binnenkomst valt de lichte woonkamer met toegang tot een oostelijk balkon meteen op. Het appartement heeft drie goed bemeten slaapkamers en een functionele keuken met toegang tot een zonnig balkon aan de westzijde. De badkamer met inloopdouche en wastafelmeubel grenst aan de grootste slaapkamer. Met een gebruiksoppervlak van ca. 73 m² en een inhoud van ca. 258 m³ is de praktische indeling waardevoller dan ooit. Het recent vernieuwde winkelcentrum bevindt zich voor de deur, terwijl sportfaciliteiten en prachtige parken dichtbij zijn. Het appartement, gebouwd in 1967, vraagt om modernisering, maar biedt veel potentieel.

Overdracht

Vraagprijs
€ 325.000 k.k.
Aangeboden sinds
27-01-2026
Status
Beschikbaar
Beschikbaar
Per direct

Oppervlakte en inhoud

Woonoppervlakte
73 m²

Bouw

Type woning
Appartement
Soort woning
Galerijflat
Soort bouw
Bestaande bouw
Bouwjaar
1967

Indeling

Aantal kamers
4
Aantal slaapkamers
3
Aantal badkamers
1

Buitenruimte

Dakterras
Niet aanwezig

Energie

Energielabel
D
Meld een probleem met deze woning