- 63 m²
- 3 kamers
- 1989
Samenvatting
- Deze woning wordt sinds 26 januari 2026 aangeboden door Hans Janssen Makelaars;
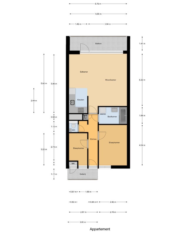
- De galerijflat heeft een woonoppervlakte van 63 m² en beschikt over 3 kamers, waarvan 2 slaapkamers;
- De woning is gebouwd In 1989 en ligt in de buurt Nije Veld in Nijmegen.
Beschrijving
Dit comfortabele 3-kamer appartement biedt een prachtig uitzicht over Nijmegen vanuit de vierde verdieping van hét complex met lift. Gelegen aan de St. Annastraat, in de nabijheid van het stadscentrum, centraal station, winkels, het UMC Radboud en de universiteit, is het een ideale plek voor zowel studenten als professionals. Je betreedt het appartement via de ruime hal, die leidt naar twee slaapkamers, een stijlvolle badkamer met ligbad en een moderne woonkamer met halfopen keuken, compleet met inbouwapparatuur. Het overdekte balkon en de eigen parkeerplaats in de parkeerkelder bieden extra gemak. Met een woonoppervlak van 63 m² en energielabel C, combineert dit appartement comfort en een centrale ligging. Mis deze kans niet!
Overdracht
- Vraagprijs
- € 350.000 k.k.
- Aangeboden sinds
- 26-01-2026
- Status
- Beschikbaar
- Beschikbaar
- Per direct
Oppervlakte en inhoud
- Woonoppervlakte
- 63 m²
Bouw
- Type woning
- Appartement
- Soort woning
- Galerijflat
- Soort bouw
- Bestaande bouw
- Bouwjaar
- 1989
Indeling
- Aantal kamers
- 3
- Aantal slaapkamers
- 2
- Aantal badkamers
- 1
Buitenruimte
- Dakterras
- Niet aanwezig
Energie
- Energielabel
- C