Contact met de makelaar

Deze woning is gevonden buiten ons eigen netwerk. Met de knop hieronder kom je direct bij de aanbieder terecht.

Nieuw

Achter de Oranjerie 17

Bekijk kaart
6041 JX Roermond (Binnenstad)
€ 189.000 k.k.
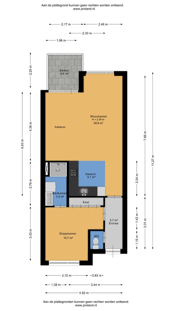
  • 54 m²
  • 2 kamers
  • 1977

Samenvatting

  • Deze woning wordt sinds 1 oktober 2025 aangeboden door Maat Makelaars;
  • De galerijflat heeft een woonoppervlakte van 54 m² en beschikt over 2 kamers, waarvan 1 slaapkamer;
  • De woning is gebouwd In 1977 en ligt in de buurt Binnenstad in Roermond;
  • De woning beschikt onder andere over de volgende voorzieningen: Kabel TV, Lift, Douche, Toilet.

Beschrijving

Overdracht

Vraagprijs
€ 189.000 k.k.
Aangeboden sinds
01-10-2025
Status
Beschikbaar
Beschikbaar
In overleg
Onderhoudsstaat
Goed

Oppervlakte en inhoud

Woonoppervlakte
54 m²
Inhoud
175 m³

VvE informatie

Inschrijving KvK
Ja
Jaarlijkse vergadering
Ja
Periodieke bijdrage
Ja (€ 232 per maand)
Reservefonds aanwezig
Ja
Onderhoudsplan
Ja
Opstalverzekering
Ja

Bouw

Type woning
Appartement
Soort woning
Galerijflat, Appartement
Soort bouw
Bestaande bouw
Bouwjaar
1977
Ligging
In het centrum

Indeling

Aantal kamers
2
Aantal slaapkamers
1
Aantal badkamers
1
Aantal woonlagen
1
Voorzieningen
  • Kabel TV
  • Lift
  • Douche
  • Toilet

Buitenruimte

Balkon
Aanwezig
Tuin
Niet aanwezig
Dakterras
Niet aanwezig

Energie

Isolatie
Dubbele beglazing
Verwarming
Blokverwarming
Warm water
Centrale verwarming
Energielabel
E

Bergruimte

Schuur/Berging
Aanwezig
Omschrijving
Inpandig

Parkeergelegenheid

Aanwezig
Ja
Soort parkeergelegenheid
Openbaar

Garage

Aanwezig
Nee
Meld een probleem met deze woning
Contact met de makelaar Bel